11/19
Paylaş
Resmi Orjinal Boyutunda Göster
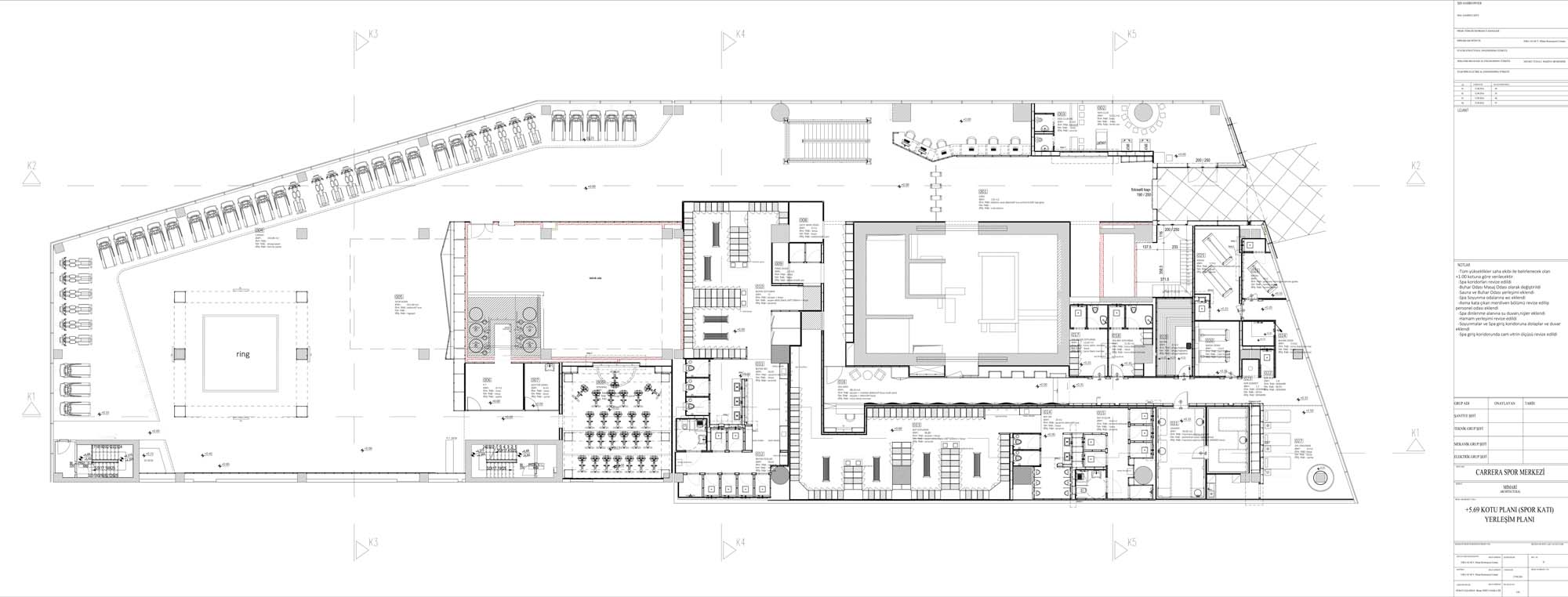
Carrera Mistral Fitness ve Spa
Proje Yeri: Bayraklı, İzmir
Proje Ofisi: Esra Acar Mimarlık
Proje Tipi: Diğer Sağlık Yapıları, Diğer Rekreasyon Yapıları
Proje Tipi Grubu: Rekreasyon / Spor
Tasarım Ekibi: Esra Acar Topuzoğlu
İşveren: Lt. Carrera Fitness&Spa
Yardımcı: Leman Aktaş, Derya Damla İdi, Ceren Çakır
Ana Yüklenici: Miray İnşaat A.Ş
Proje Yöneticisi: Esra Acar Topuzoğlu
Aydınlatma Projesi: Lumina Aydınlatma
Grafik Tasarım: Lt Carrera Fitness & Spa
Mekanik Projesi: Projeısı, Necdet Tunalı
Elektrik Projesi: Onmuş Elektrik
Tesisat Projesi: Projeısı, Necdet Tunalı
Yangın Güvenlik Danışmanı: Abdurrahman Kılıç
Mimari Mesleki Kontrollük: Esra Acar Topuzoğlu
Şantiye Yöneticisi: Tuna Şahan
Proje Başlangıç Yılı: 2016
Proje Bitiş Yılı: 2016
İnşaat Başlangıç Yılı: 2016
İnşaat Bitiş Yılı: 2017
Toplam İnşaat Alanı: 3,500 m²