23/28
Paylaş
Resmi Orjinal Boyutunda Göster
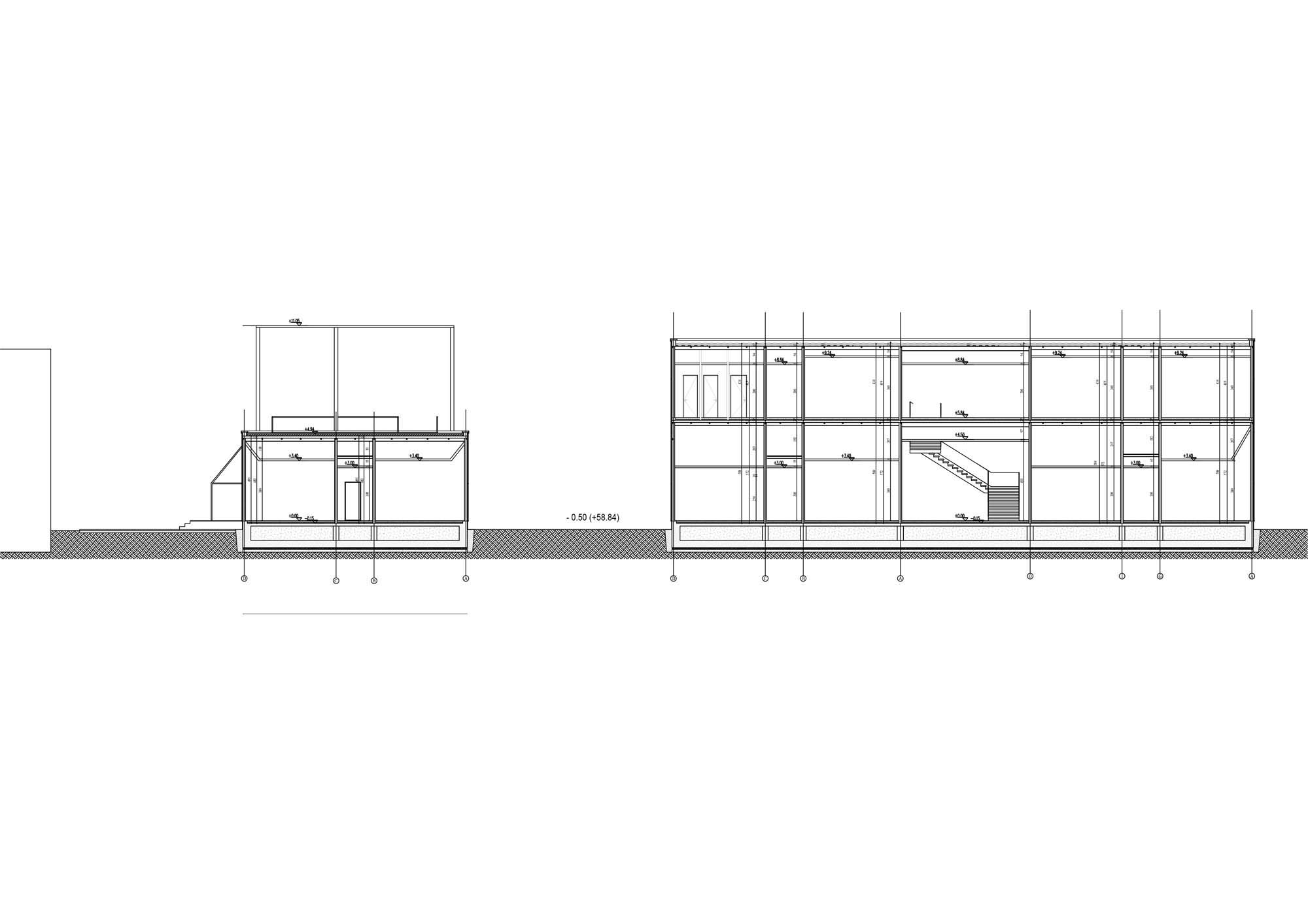
ENKA İdari Ofis
Project Location: Adapazarı (Sakarya)
Project Office: Global Architectural Development (GAD)
Project Type: Offices
Proje Tipi Grubu: Endüstriyel
Tasarım Ekibi: Gökhan Avcıoğlu, Emir Drahşan, Baha Ercanoğlu, Can Büyükçelen, Göktan Catıkkaş, Yonca Ürün, Eti Kastoryano, T. Onur Özdemir, Eda Demirel
Employer: ENKA
Ana Yüklenici: ENKA
Projcet Manager: Gökhan Avcıoğlu, Murat Pilevneli
Structural Project: Yapı Akademisi
Çelik Projesi: Gün İnşaat
Photography: Global Architectural Development (GAD)
Project Start Date: 2015
Project End Date: 2017
Construction Start Date: 2015
Construction End Date: 2017
Building Plot Area: 10,750 m²
Total Construction Area: 3,900 m²