47/57
Paylaş
Resmi Orjinal Boyutunda Göster
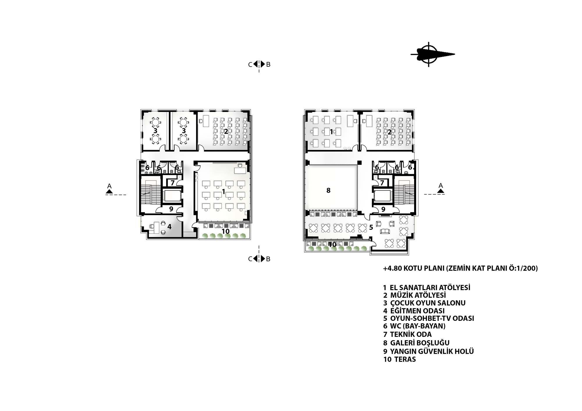
Antalya Konyaaltı Belediyesi Kadınlar Sanat Eğitim Merkezi ve Yaşlılar Kreşi
Proje Yeri: Konyaaltı, Antalya
Proje Ofisi: Keyarch Mimarlık
Proje Tipi: Sosyal Tesis
Proje Tipi Grubu: Kamu
Tasarım Ekibi: Özlem Yıldız Kaya
İşveren: Konyaaltı Belediyesi
Ana Yüklenici: MZH İnşaat
Proje Başlangıç Yılı: , 2014
Proje Bitiş Yılı: 2015
İnşaat Başlangıç Yılı: 2015
İnşaat Bitiş Yılı: 2017
Arsa Alanı: 4,994 m2
Toplam İnşaat Alanı: 4,000 m²