23/23
Paylaş
Resmi Orjinal Boyutunda Göster
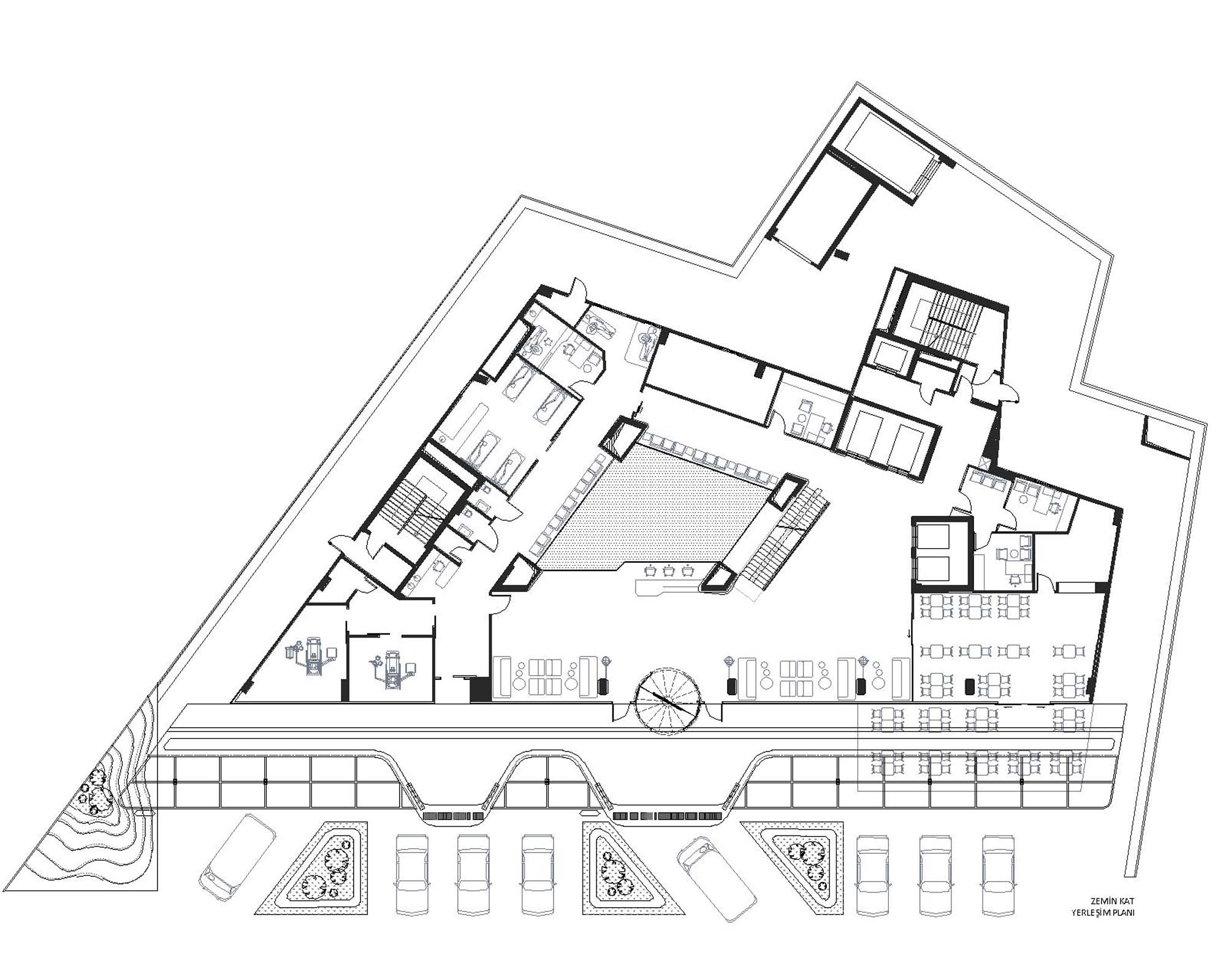
Medicana Hastanesi Kızıltoprak
Proje Yeri: Kadıköy, İstanbul
Proje Ofisi: ZOOM / TPU
Proje Tipi: Hastane / Poliklinik
Proje Tipi Grubu: Sağlık
Tasarım Ekibi: Atilla Kuzu, Levent Çırpıcı, Yunus Emre Kara
İşveren: Işıl Sağlık Hizmetleri
Yardımcı: Begüm Öncül, Ata Benli, Erman Aycan, Rabia Aydın, Ceren Çelikel, Şule Erdoğan
Proje Yöneticisi: Begüm Öncül
Proje Başlangıç Yılı: 2016
Proje Bitiş Yılı: 2016
İnşaat Başlangıç Yılı: 2016
İnşaat Bitiş Yılı: 2017
Arsa Alanı: 1,983 m²
Toplam İnşaat Alanı: 14,104 m²