12/24
Paylaş
Resmi Orjinal Boyutunda Göster
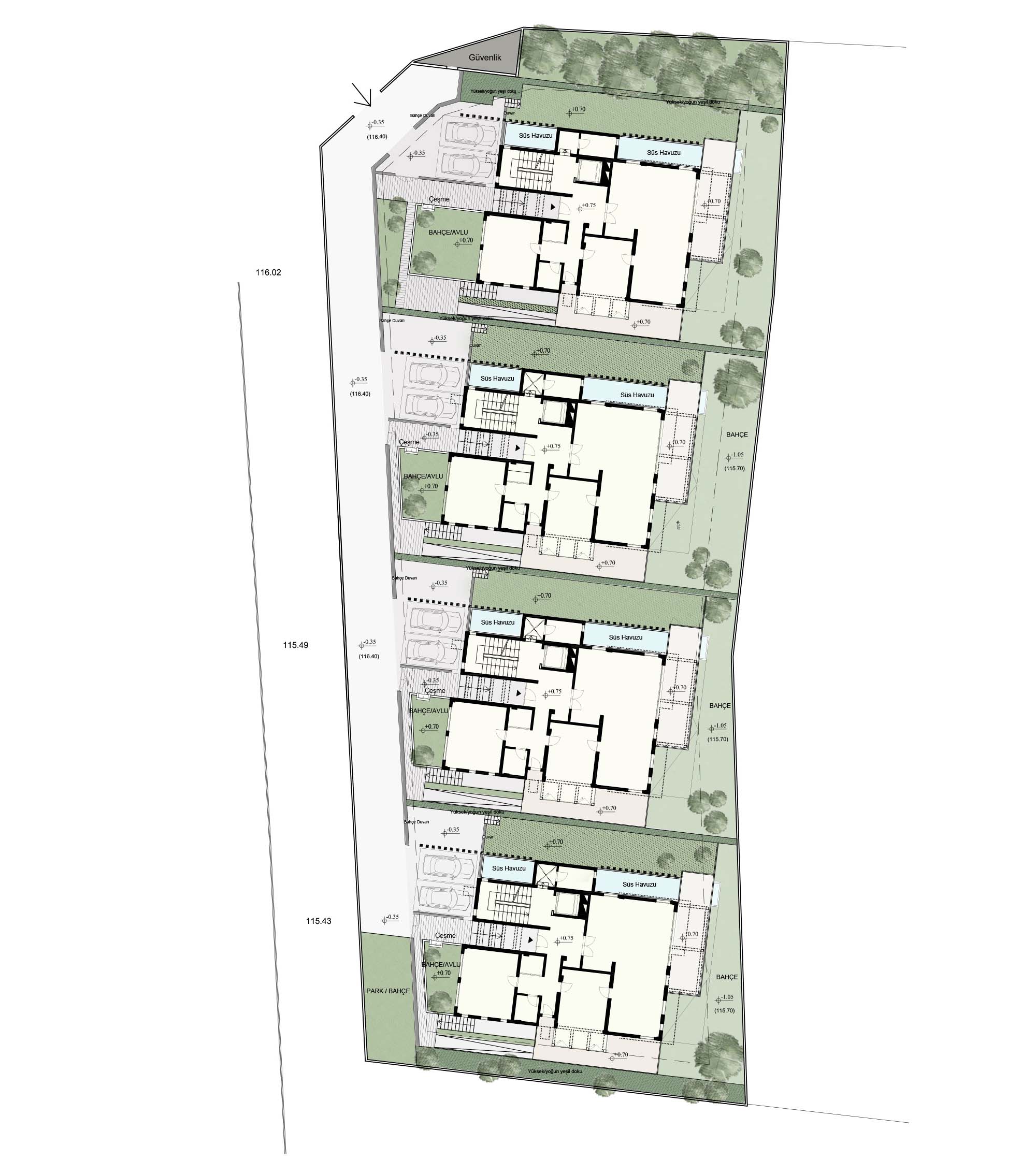
Dört Villa
Proje Yeri: Seyhan, Adana
Proje Ofisi: Mimarlık Araştırmaları Stüdyosu (MArS - Mimarlar)
Proje Tipi: Tek Ev / Villa, Konut Sitesi / Grubu
Proje Tipi Grubu: Konut
Tasarım Ekibi: Atilla Yücel, Cem Yücel
İşveren: Ercan Kumaş, Aytek Konfeksiyon
Yardımcı: Burçin Baykurt, Feyza Sarı
Ana Yüklenici: Bilgin Kış, Hıdır Bahçe
Fotoğraf: Mustafa Çavuş, Berk Günal Coşman
Proje Başlangıç Yılı: 2014
Proje Bitiş Yılı: 2015
İnşaat Başlangıç Yılı: 2015
İnşaat Bitiş Yılı: 2017
Arsa Alanı: 2,855 m2
Toplam İnşaat Alanı: 3,000 m²