25/33
Paylaş
Resmi Orjinal Boyutunda Göster
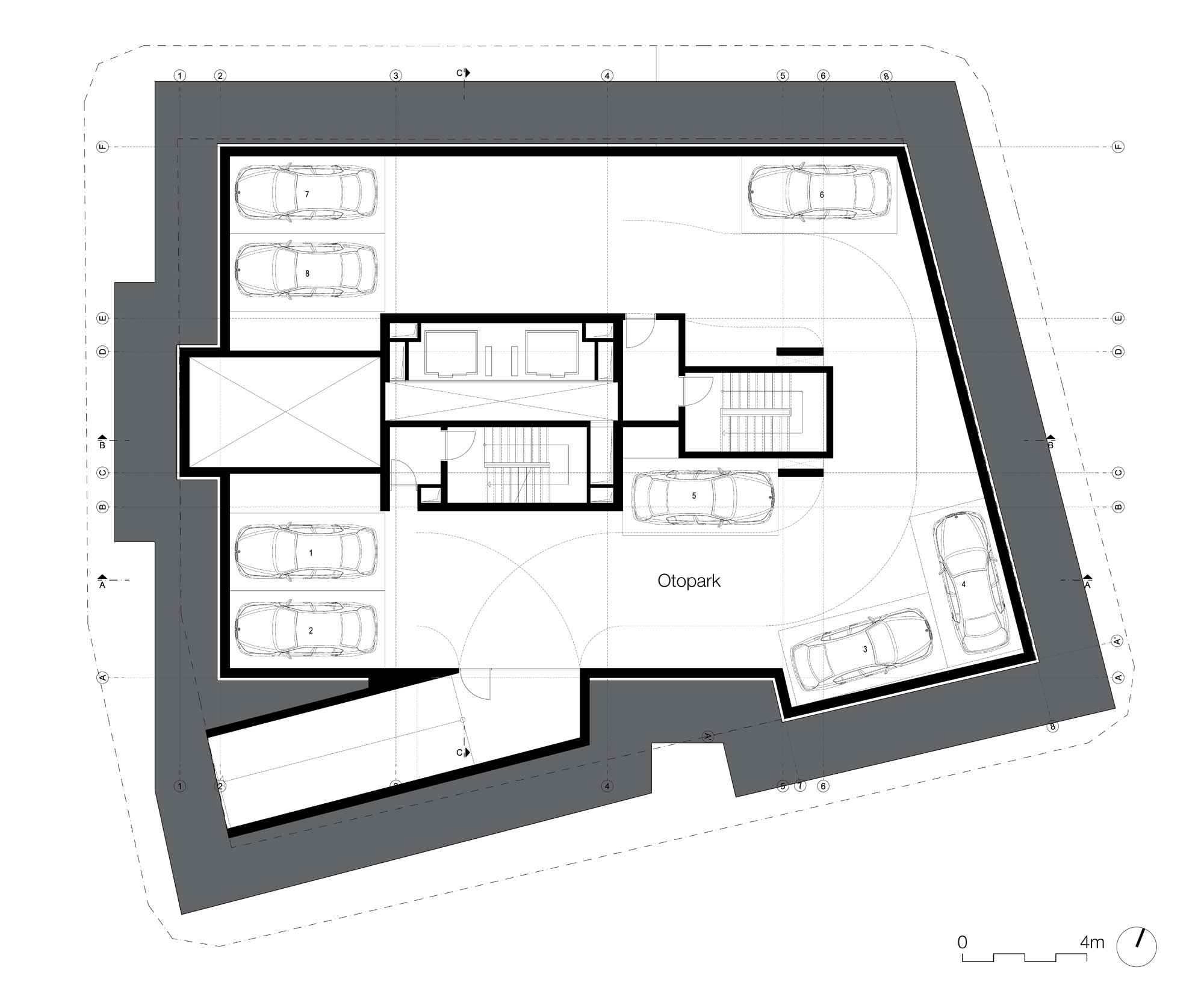
Nevmahal
Proje Yeri: Bağcılar, İstanbul
Proje Ofisi: TAMatolye
Proje Tipi: Apartman
Proje Tipi Grubu: Konut
Tasarım Ekibi: Mustafa Taner Arıkan
İşveren: Karkın Gayrimenkul
Yardımcı: Kaan Şahinbaz
Ana Yüklenici: Karkın Gayrimenkul
Statik Projesi: Osman Demir
Mekanik Projesi: Metin Meriç
Elektrik Projesi: Özcan Kocaman
Maket: Maketsan
Fotoğraf: Barış Çavuş, Kürşat Gökahmetoğlu, Burak Şükrü Sahan
Şantiye Yöneticisi: Kemal Özoğlu
Proje Başlangıç Yılı: 2015
Proje Bitiş Yılı: 2016
İnşaat Başlangıç Yılı: 2016
İnşaat Bitiş Yılı: 2017
Arsa Alanı: 809 m²
Toplam İnşaat Alanı: 5,393 m²