29/40
Paylaş
Resmi Orjinal Boyutunda Göster
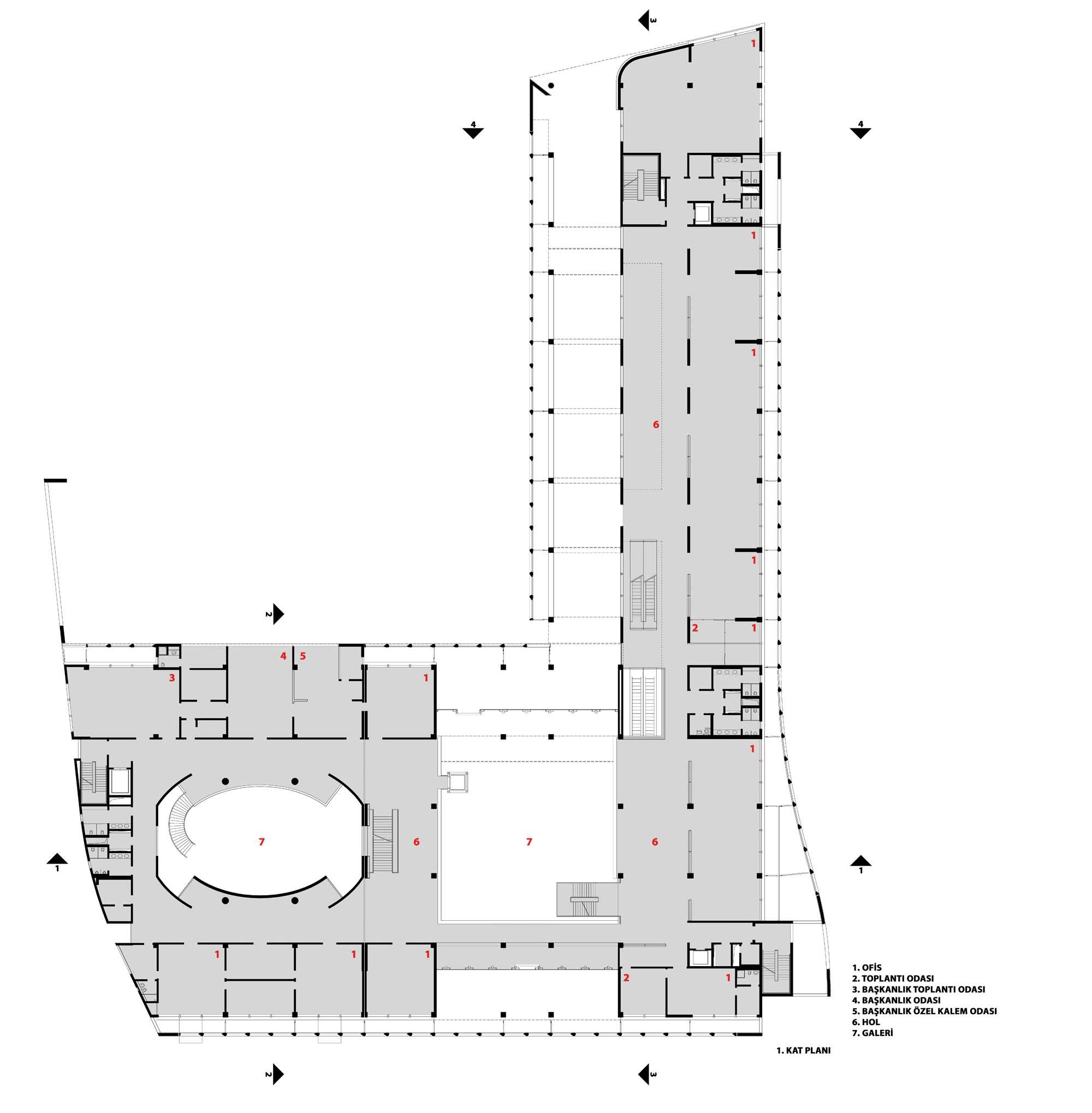
Antalya Büyükşehir Belediyesi Yeni Hizmet Binası
Proje Yeri: Antalya, Muratpaşa
Proje Tipi: Belediye Hizmet Binası
Proje Tipi Grubu: Kamu
Tasarım Ekibi: Nurbin Paker, Hüseyin Kahvecioğlu
İşveren: Antalya Büyükşehir Belediyesi
Yardımcı: Esra Sönmez, Melis Nur İhtiyar Varol, Elçin Kara, Dilan Yüksel, Arda Oral Koçak, Nil Aynalı, Cem Kozar, Salvatore Diana, Danila Sironi
Ana Yüklenici: Güngör İnşaat
Peyzaj Mimarlığı: K Mimarlık
Uygulama Projesi: MONO Mimari Tasarımlar
Aydınlatma Projesi: Cedetaş Mühendislik
Statik Projesi: İpekar Mühendislik, Kıvan İpekar
Mekanik Projesi: Tanrıöver Mühendislik
Elektrik Projesi: Cedetaş Mühendislik
Çelik Projesi: İpekar Mühendislik, Kıvan İpekar
Akustik Danışmanı: Nurgün Tamer Bayazıt
Maket: Atölye K, Murat Küçük
Proje Başlangıç Yılı: 2005
Proje Bitiş Yılı: 2006
İnşaat Başlangıç Yılı: 2007
İnşaat Bitiş Yılı: 2017
Arsa Alanı: 16.600 m2
Toplam İnşaat Alanı: 36.000 m²