27/31
Paylaş
Resmi Orjinal Boyutunda Göster
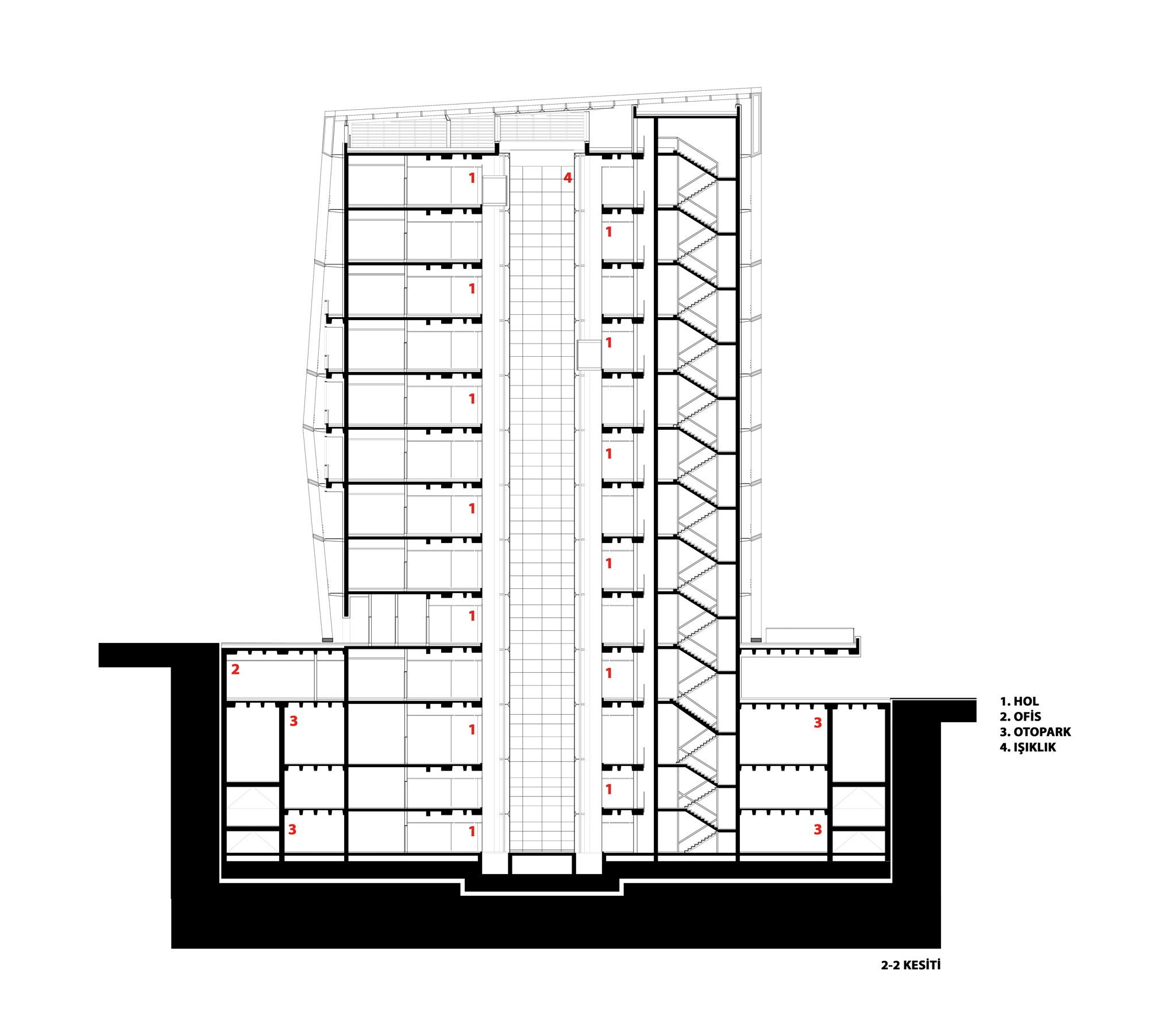
Teknopark
Proje Yeri: İstanbul, Pendik
Proje Tipi: Ar-Ge Binası, Ofis
Proje Tipi Grubu: Ticari
Tasarım Ekibi: Nurbin Paker, Hüseyin Kahvecioğlu, Cem Altun, Melis Nur İhtiyar Varol
İşveren: Teknopark İstanbul A.Ş.
Danışman: Bahar Aksel Enşici
Yardımcı: Elçin Kara, Seda Sultansu, Gülin Kara, Sibel Ürem, Ayşegül Taşkın, Mine Koyaz, Merve Deniz Efe, Henrik Schulte, Mehmet Gören, İbrahim Tolga Han
Ana Yüklenici: Haldız İnşaat
Peyzaj Mimarlığı: Cey Peyzaj
Proje Yöneticisi: TÜMAŞ
Uygulama Projesi: K Mimarlık, Cem Altun
Cephe Tasarımı: K Mimarlık
Statik Projesi: Özcihan Mühendislik, Bahadır Özcihan
Mekanik Projesi: Tanrıöver Mühendislik
Elektrik Projesi: Cedetaş Mühendislik
Çelik Projesi: Özcihan Mühendislik, Bahadır Özcihan
Yangın Tahliye Projesi: AREL Yangın Proje, Tuba Bal
Yangın Güvenlik Danışmanı: ORGA Mühendislik, Bora Kocaman
Fotoğraf: Cemal Emden
Proje Başlangıç Yılı: 2012
Proje Bitiş Yılı: 2014
İnşaat Başlangıç Yılı: 2015
İnşaat Bitiş Yılı: 2017
Arsa Alanı: 5,800 m2
Toplam İnşaat Alanı: 20,000 m²