9/10
Paylaş
Resmi Orjinal Boyutunda Göster
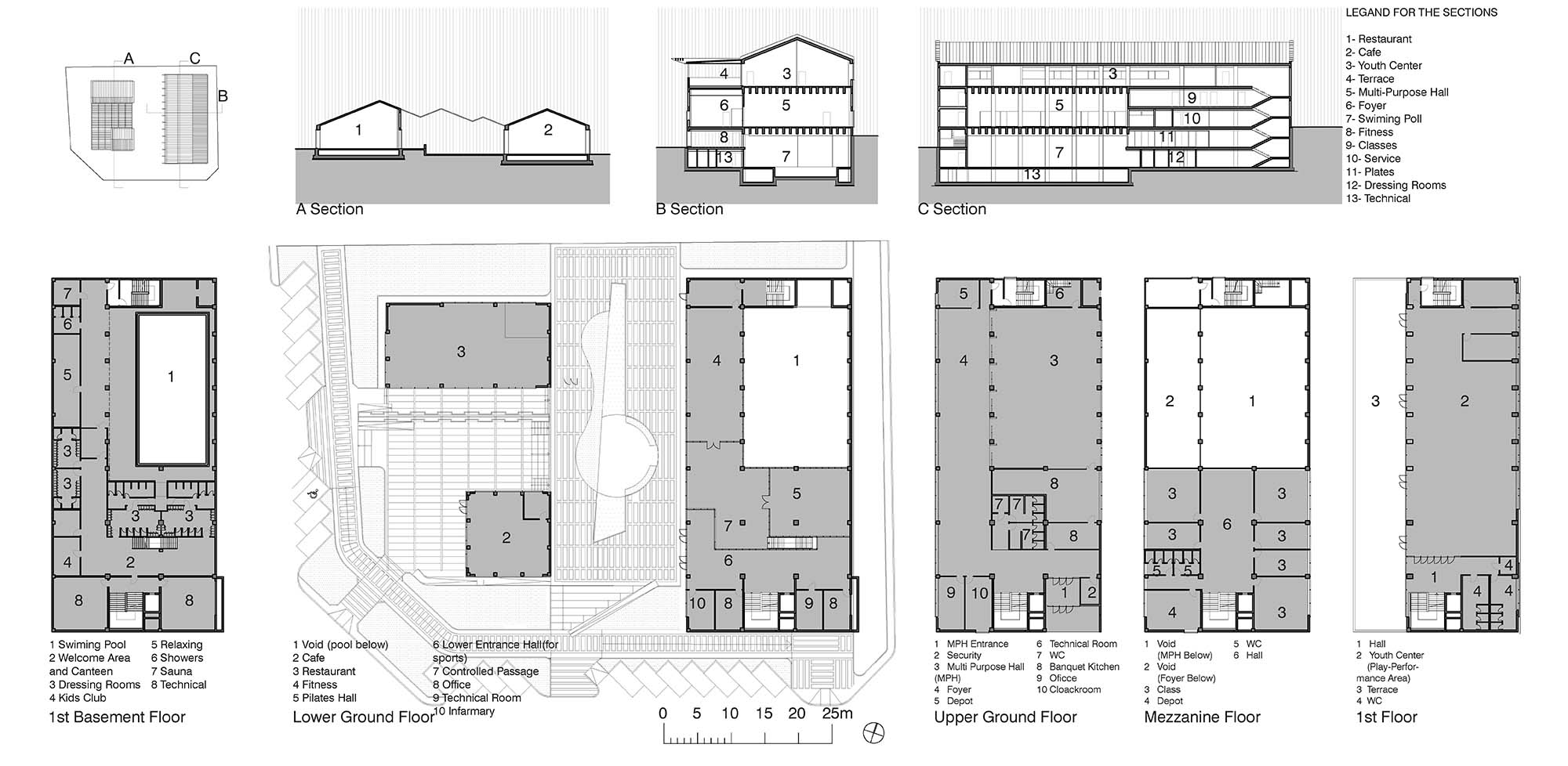
Bağlum Sosyal Merkez Binası
Proje Yeri: Keçiören, Ankara
Proje Ofisi: rggA Mimari Tasarım Stüdyosu
Proje Tipi: Sosyal Tesis
Proje Tipi Grubu: Kamu
Tasarım Ekibi: R. Güneş Gökçek, Esra Hilal Akkuyu, Mustafa Taşdemir, Yusuf Geneş
Proje Yöneticisi: R. Güneş Gökçek
Statik Projesi: Halil Pehlivan
Mekanik Projesi: Ak Proje
Elektrik Projesi: Ak Proje
Fotoğraf: R. Güneş Gökçek, Keçiören Belediyesi
Proje Başlangıç Yılı: 2015
Proje Bitiş Yılı: 2016
İnşaat Başlangıç Yılı: 2016
İnşaat Bitiş Yılı: 2017
Arsa Alanı: 6,000 m²
Toplam İnşaat Alanı: 4,800 m2