6/7
Paylaş
Resmi Orjinal Boyutunda Göster
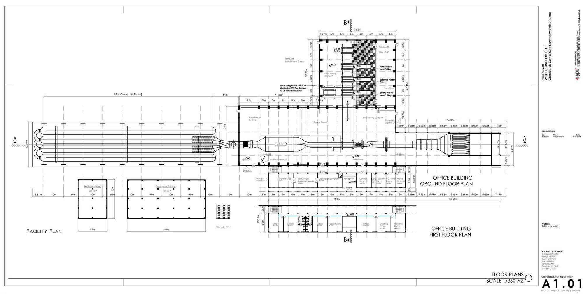
Rüzgar Tüneli Binası
Proje Yeri: Ankara
Proje Ofisi: YPM
Proje Tipi: Diğer Endüstri Yapıları
Proje Tipi Grubu: Endüstri
Tasarım Ekibi: R. Güneş Gökçek, Bengü Yener, Birsen Yüceses, Ertuğan Genel, Ozgur Çevik, Bora Yıldırım, Esra Duman
İşveren: Aiolos
Proje Başlangıç Yılı: 2013
Proje Bitiş Yılı: 2013
Arsa Alanı: 80,000 m2
Toplam İnşaat Alanı: 2,000 m²