11/14
Paylaş
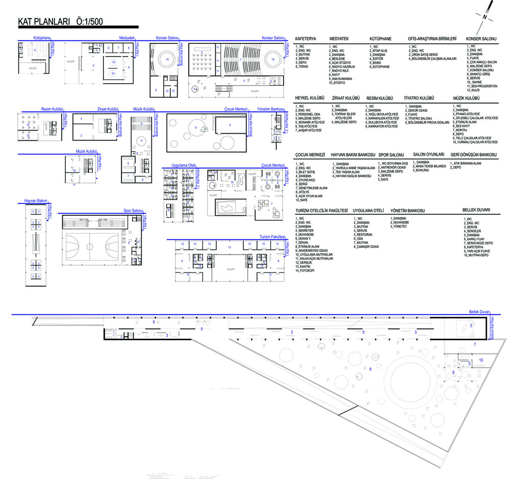
Resmi Orjinal Boyutunda Göster
Antalya Kepez "Dokuma Alanı Fikir Projesi Yarışması"(Katılımcı)
Proje Yeri: Antalya, Kepez
Proje Tipi: Kentsel Tasarım, Peyzaj
Proje Tipi Grubu: Katılımcı
Tasarım Ekibi: İsmail Ruhlukürkçü, Güntülü Gündoğ, Okan Koçgürbüz, Deniz Söy, Işıl Koç, Enise Tuba Solak