25/26
Paylaş
Resmi Orjinal Boyutunda Göster
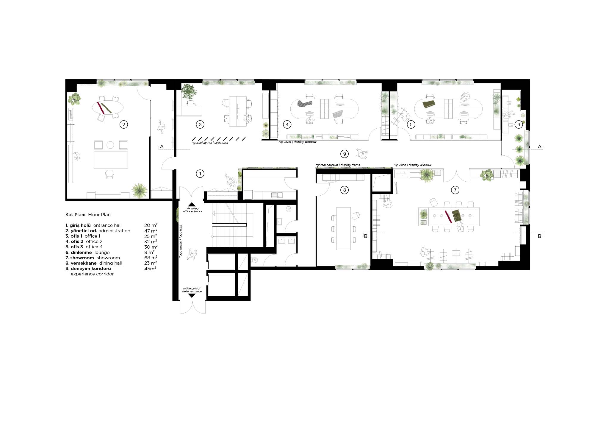
Elissa Stampa Tekstil Tasarım Atölyesi
Proje Yeri: İstanbul, Güngören
Proje Ofisi: Slash Architects
Proje Tipi: Ofis
Proje Tipi Grubu: Ticari
Tasarım Ekibi: Şule Ertürk, İpek Baycan Magriso, Nergis Kahraman
İşveren: Elissa Stampa
Ana Yüklenici: Aks Mimarlık İnşaat
Fotoğraf: ALTKAT Architectural Photography
Proje Başlangıç Yılı: 2017
Proje Bitiş Yılı: 2017
İnşaat Başlangıç Yılı: 2017
İnşaat Bitiş Yılı: 2018
Toplam İnşaat Alanı: 360 m2