27/28
Paylaş
Resmi Orjinal Boyutunda Göster
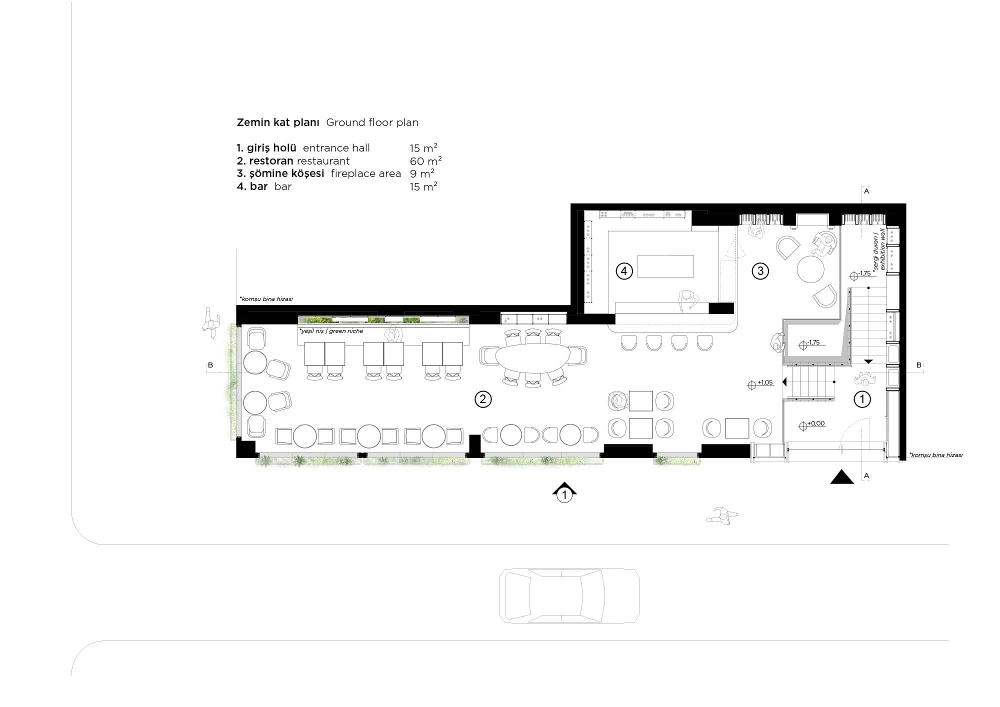
Milano Gourmet Restoran ve Şarküteri
Project Location: İstanbul, Şişli
Project Office: Slash Architects, İpek Baycan Architects
Project Type: Restaurant / Café / Bar
Proje Tipi Grubu: Commercial
Tasarım Ekibi: Şule Ertürk, İpek Baycan Magriso
Employer: Milano Gourmet
Yardımcı: Aylin İnce, Nergis Kahraman
Ana Yüklenici: Aks Mimarlık İnşaat
Photography: Burak Teoman
Project Start Date: 2017
Project End Date: 2017
Construction Start Date: 2017
Construction End Date: 2018
Total Construction Area: 320 m²