11/12
Paylaş
Resmi Orjinal Boyutunda Göster
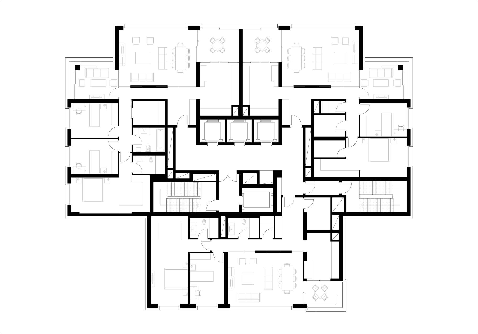
Cepa Evleri İncek
Proje Yeri: Çankaya, Ankara
Proje Ofisi: A Tasarım Mimarlık
Proje Tipi: Konut Sitesi / Grubu
Proje Tipi Grubu: Konut
Tasarım Ekibi: Ali Osman Öztürk
İşveren: Üstünçelik AŞ
Yardımcı: Burcu Şenal, Bülent Karakaya, Canan Karakaya, Cenk Erkoçoğlu, Eser Çengel, Güray Tekin, Öznur Yıldız, Süreyya Atalay, Tuğberk Cem Kuranel
Ana Yüklenici: Üstünçelik AŞ
Peyzaj Mimarlığı: Dalokay Tasarım Stüdyosu (DDS)
Statik Projesi: Yüksek Proje
Mekanik Projesi: Metta Mühendislik
Elektrik Projesi: Akay Mühendislik
Proje Başlangıç Yılı: 2015
Proje Bitiş Yılı: 2016
İnşaat Başlangıç Yılı: 2016
Arsa Alanı: 18,190 m2
Toplam İnşaat Alanı: 58,900 m2