19/22
Paylaş
Resmi Orjinal Boyutunda Göster
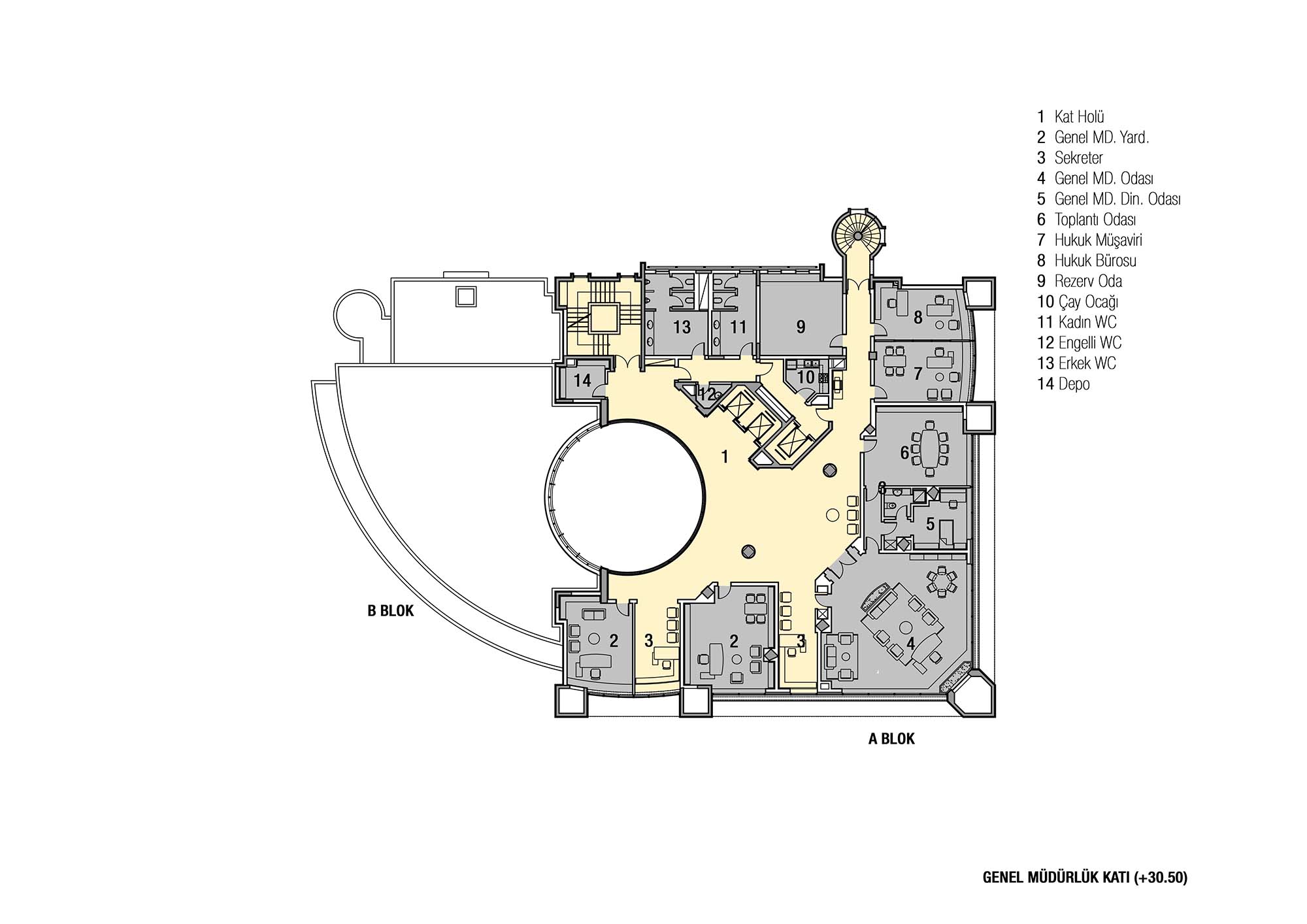
Tahincioğlu Holding Genel Merkez Binası
Proje Yeri: Çayırova, Kocaeli (İzmit)
Proje Ofisi: Ergün Mimarlık
Proje Tipi: Ofis
Proje Tipi Grubu: Ticari
Tasarım Ekibi: Ender Ergün
İşveren: Tahincioğlu Holding
İç Mekan Projesi: CEDAŞ, Esat Özkan
Statik Projesi: Fonksiyon Mühendislik
Mekanik Projesi: Gürdal Mühendislik
Elektrik Projesi: Erde Mühendislik
Fotoğraf: Apo İçdağ
Proje Başlangıç Yılı: 1997
Proje Bitiş Yılı: 1998
İnşaat Başlangıç Yılı: 1999
İnşaat Bitiş Yılı: 2003
Toplam İnşaat Alanı: 10,000m2