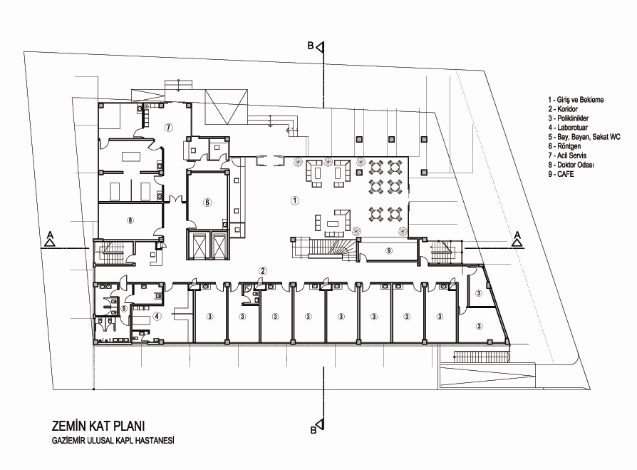
Zemin Kat Planı
25/27
Paylaş
Resmi Orjinal Boyutunda Göster
Gaziemir Özel Kalp ve Damar Hastalıkları Hastanesi
Fotoğraflar: Cemal Emden
Proje Ofisi: M artı D Mimarlık
Proje Tipi: Hastane / Poliklinik
Tasarım Ekibi: Dürrin Süer, Metin Kılıç
İşveren: Ulusal Kalp Özel Sağlık Hizmetleri
Yardımcı: Seden Cinasal Avcı
Ana Yüklenici: Karyıl İnşaat
Statik Projesi: Tamer Paker
Mekanik Projesi: Ekrem Evren
Elektrik Projesi: Namık Onmuş
Proje Başlangıç Yılı: 2008
Proje Bitiş Yılı: 2008
İnşaat Başlangıç Yılı: 2008
İnşaat Bitiş Yılı: 2011
Arsa Alanı: 2.110 m2
Toplam İnşaat Alanı: 4.180 m2