8/16
Paylaş
Resmi Orjinal Boyutunda Göster
Ofis Gradyan
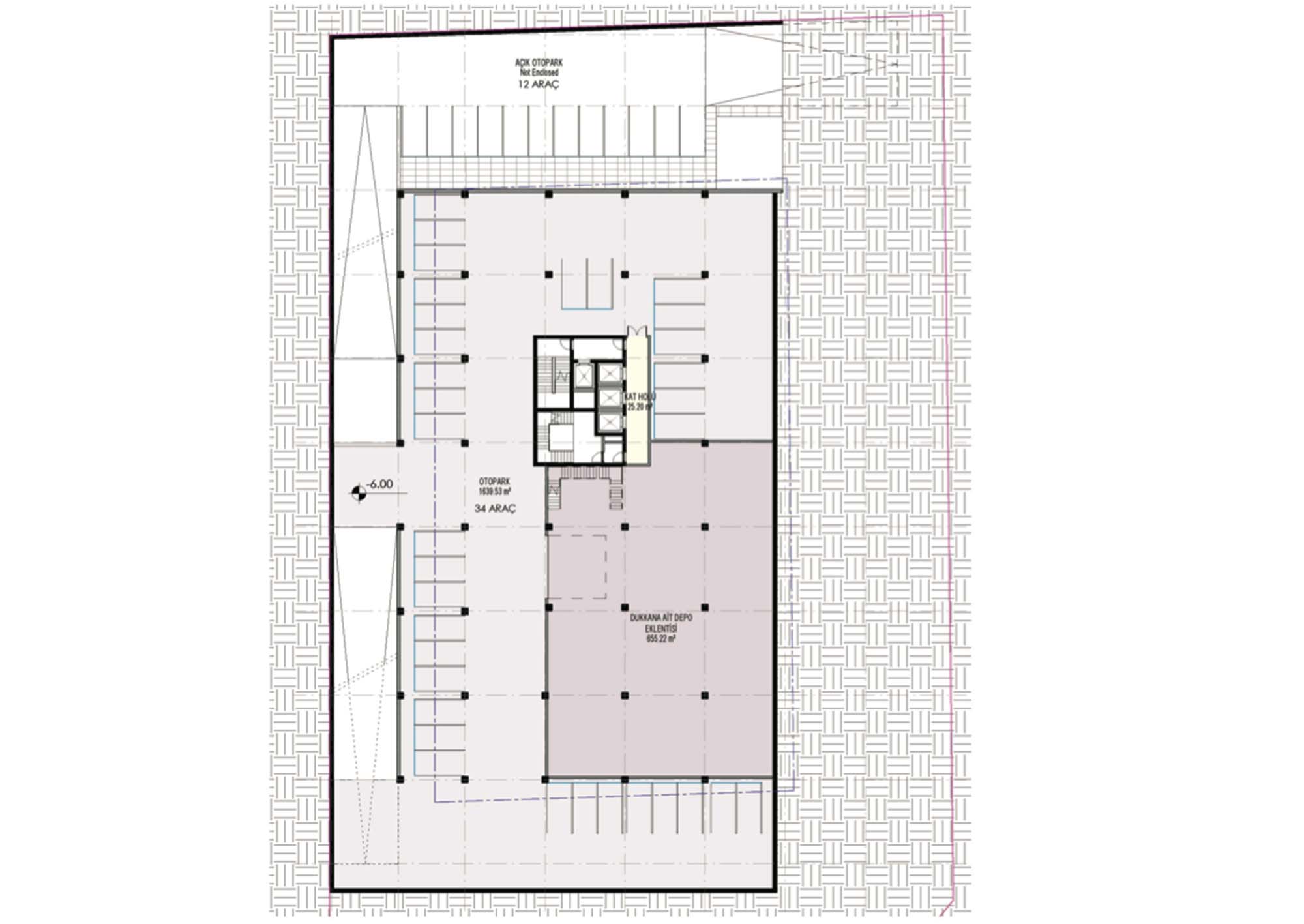
Proje Yeri: Ankara
Proje Ofisi: rggA Mimari Tasarım Stüdyosu
Proje Tipi: Ofis
Proje Tipi Grubu: Ticari
Tasarım Ekibi: R. Güneş Gökçek, Ahmet Çağlar, Ozan Burak Güzey
Proje Başlangıç Yılı: 2017
Proje Bitiş Yılı: 2017
Arsa Alanı: 5,000 m²
Toplam İnşaat Alanı: 24,735 m2