12/13
Paylaş
Resmi Orjinal Boyutunda Göster
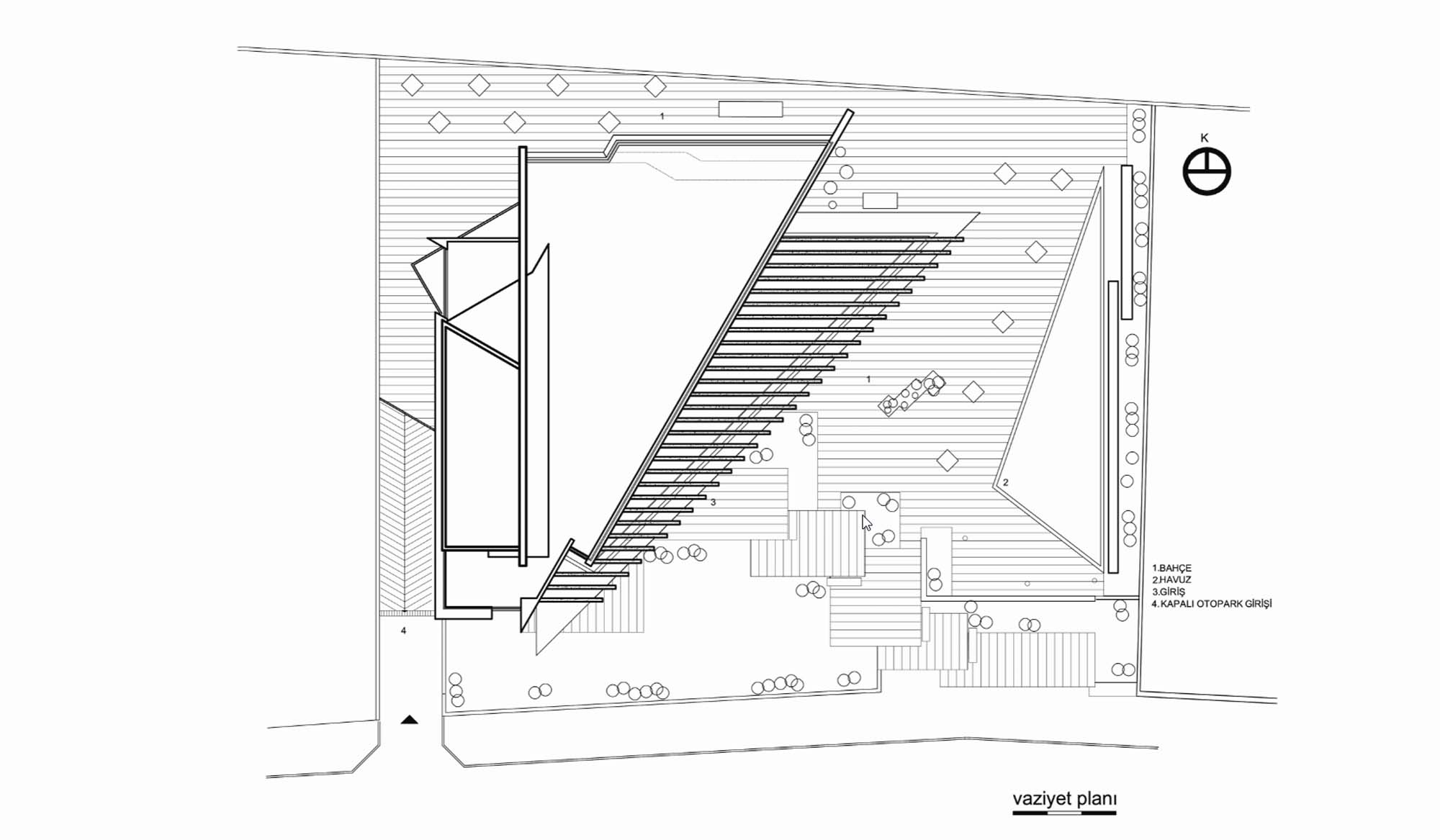
Pasta Bahçesi
Proje Yeri: Adana, Çukurova
Proje Ofisi: Atelye Mim Mimarlık
Proje Tipi: Restoran / Kafe / Bar
Proje Tipi Grubu: Ticari
Tasarım Ekibi: Ozan Tüzün, Suzan Mehtap Tüzün
İşveren: Zeyneloğlu Gıda
Yardımcı: Müzeyyen Atmaca, Tan Kanmaz
Ana Yüklenici: Zeyneloğlu Gıda
Peyzaj Mimarlığı: Eşref Erdem
İç Mekan Projesi: Kerem Küçükgürel
Proje Yöneticisi: Ozan Tüzün
Statik Projesi: Bahadır Acuner
Mekanik Projesi: Nebahat Çay
Elektrik Projesi: Metin Donma
Tesisat Projesi: Nebahat Çay
Maket: Mehmet Akif Ersoy
Proje Başlangıç Yılı: 2004
Proje Bitiş Yılı: 2004
İnşaat Başlangıç Yılı: 2004, 2006
Arsa Alanı: 1,631 m2
Toplam İnşaat Alanı: 1,600 m2