11/16
Paylaş
Resmi Orjinal Boyutunda Göster
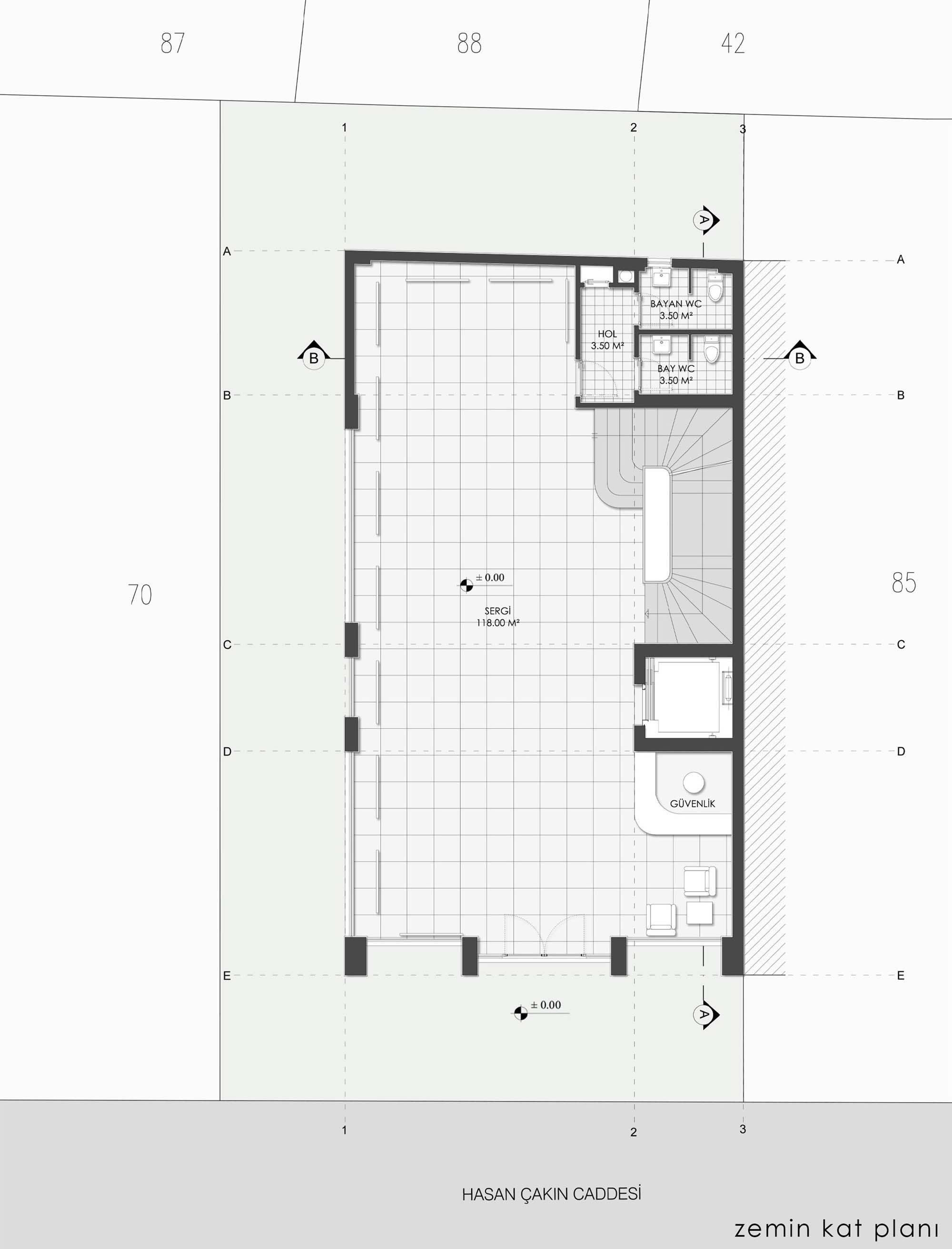
Bafra Esnaf Kefalet Kooperatifi
Proje Yeri: Samsun, Bafra
Proje Ofisi: Başak Mimarlık
Proje Tipi: Diğer Kamu Yapıları
Proje Tipi Grubu: Ticari
Tasarım Ekibi: Cengiz Şentürk, Hakan Düzen, Büşra Karatay, Ceren Şentürk
İşveren: CEBA İnşaat
Yardımcı: Betül Eroğlu, Kaan Şişman
Ana Yüklenici: CEBA İnşaat
Proje Başlangıç Yılı: 2016
Proje Bitiş Yılı: 2016
İnşaat Başlangıç Yılı: 2016
İnşaat Bitiş Yılı: 2018
Toplam İnşaat Alanı: 1,006 m²