15/17
Paylaş
Resmi Orjinal Boyutunda Göster
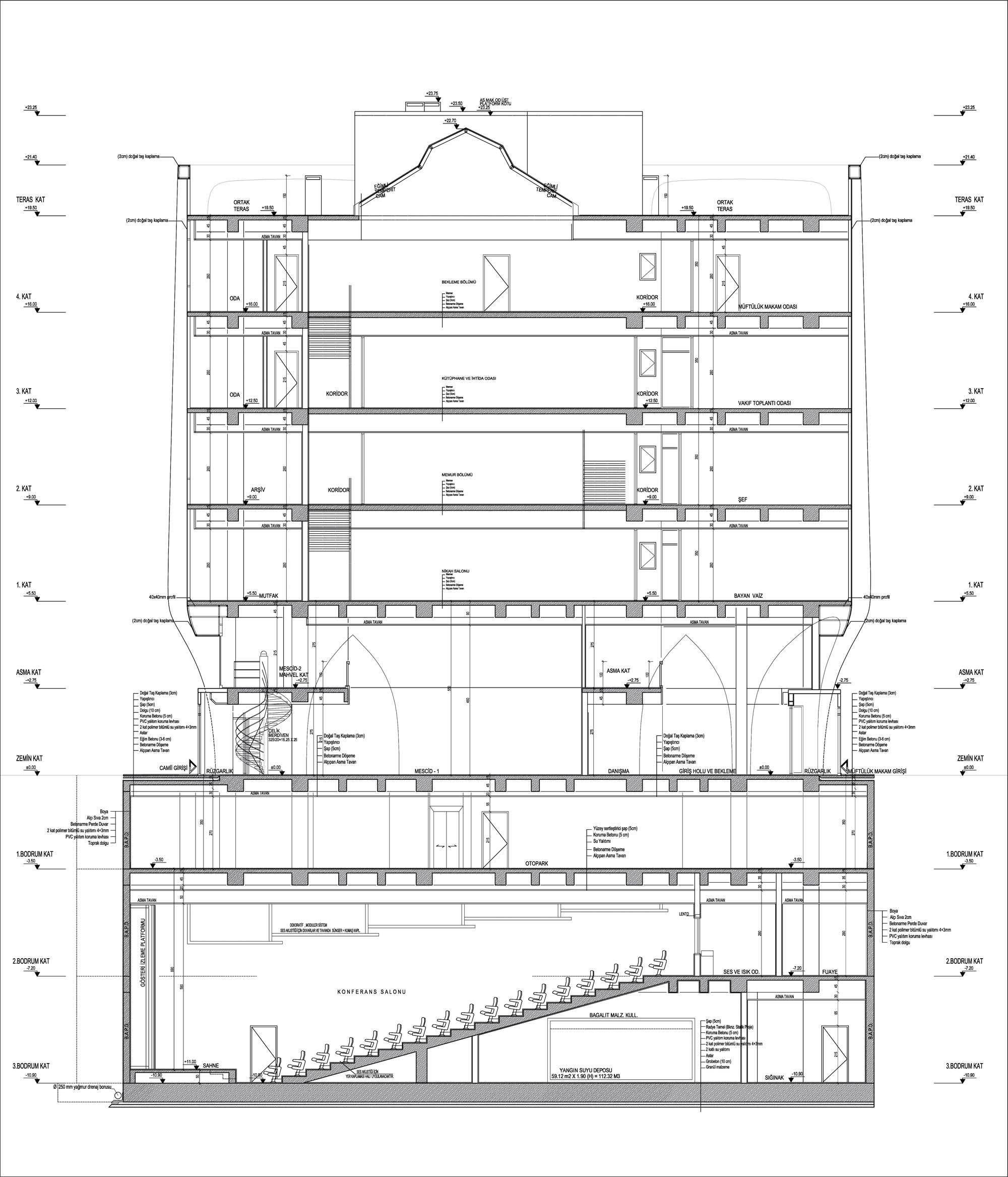
Muratpaşa Müftülüğü Hizmet Binası
Project Location: Muratpaşa, Antalya
Project Office: NITA Mimarlık
Project Type: Public Administration Building
Proje Tipi Grubu: Kamu
Tasarım Ekibi: Serdar Kızıltaş, Zeynep Melike Atay Kızıltaş
Employer: Muratpaşa Müftülüğü
Ana Yüklenici: Atölye Yapı İnşaat
Structural Project: Dizant Mühendislik
Mechanical Project: Mehmet Bülbül
Electrical Project: Tevfik Sarıtaş
Plumbing Project: Mehmet Bülbül
Construction Site Manager: Berkay Ok
Project Start Date: 2017
Project End Date: 2017
Construction Start Date: 2018
Building Plot Area: 700 m2
Total Construction Area: 4,516 m²