19/19
Paylaş
Resmi Orjinal Boyutunda Göster
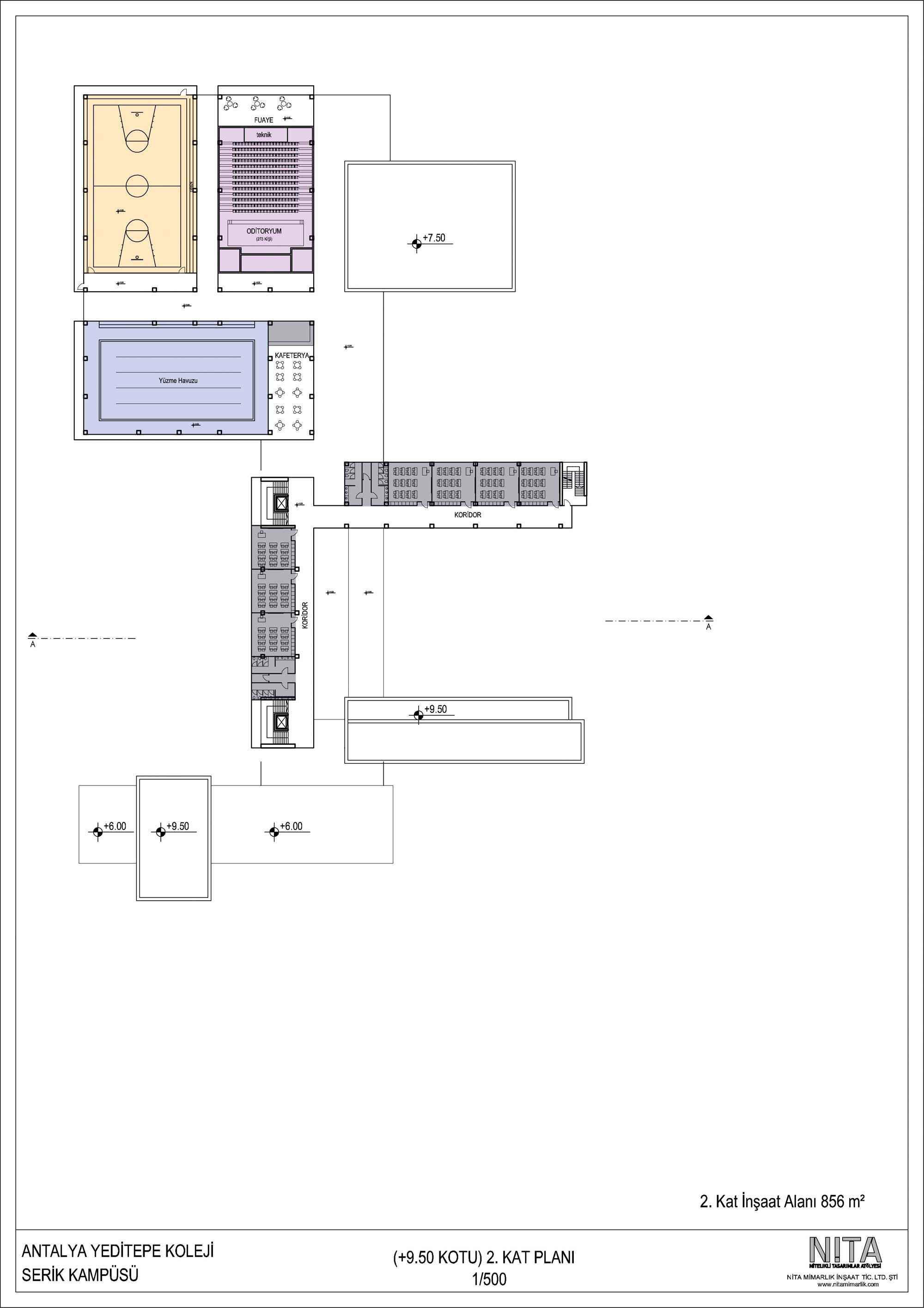
İstek Antalya Yeditepe Koleji Serik Kampüsü
Proje Yeri: Serik, Antalya
Proje Ofisi: NITA Mimarlık
Proje Tipi: Anaokulu / Kreş, İlkokul, Lise / Ortaöğretim
Proje Tipi Grubu: Eğitim
Tasarım Ekibi: Serdar Kızıltaş, Zeynep Melike Atay Kızıltaş
İşveren: Koca Eğitim AŞ
Statik Projesi: BST Mühendislik
Elektrik Projesi: Electromat
Proje Başlangıç Yılı: 2017
Proje Bitiş Yılı: 2017
Arsa Alanı: 16,456 m²
Toplam İnşaat Alanı: 8,750 m²