12/15
Paylaş
Resmi Orjinal Boyutunda Göster
Merzifon Belediyesi İş ve Yaşam Merkezi Mimari Proje Yarışması
Project Location: Amasya, Merzifon
Project Office: NITA Mimarlık
Project Type: Offices
Proje Tipi Grubu: Katılımcı
Tasarım Ekibi: Serdar Kızıltaş, Zeynep Melike Atay Kızıltaş
Project Start Date: 2017
Project End Date: 2017
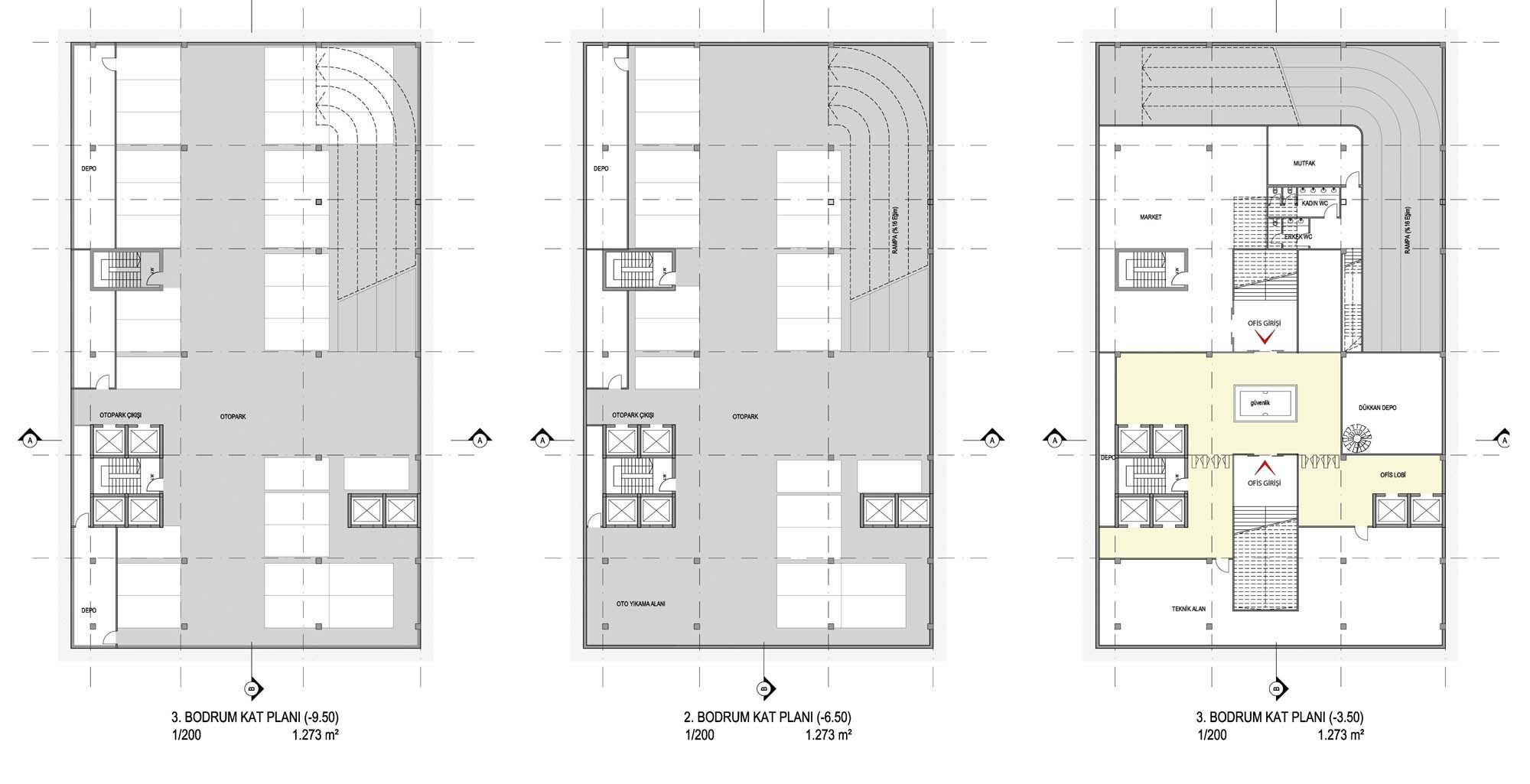
Building Plot Area: 1,500 m2
Total Construction Area: 7.643 m²