8/8
Paylaş
Resmi Orjinal Boyutunda Göster
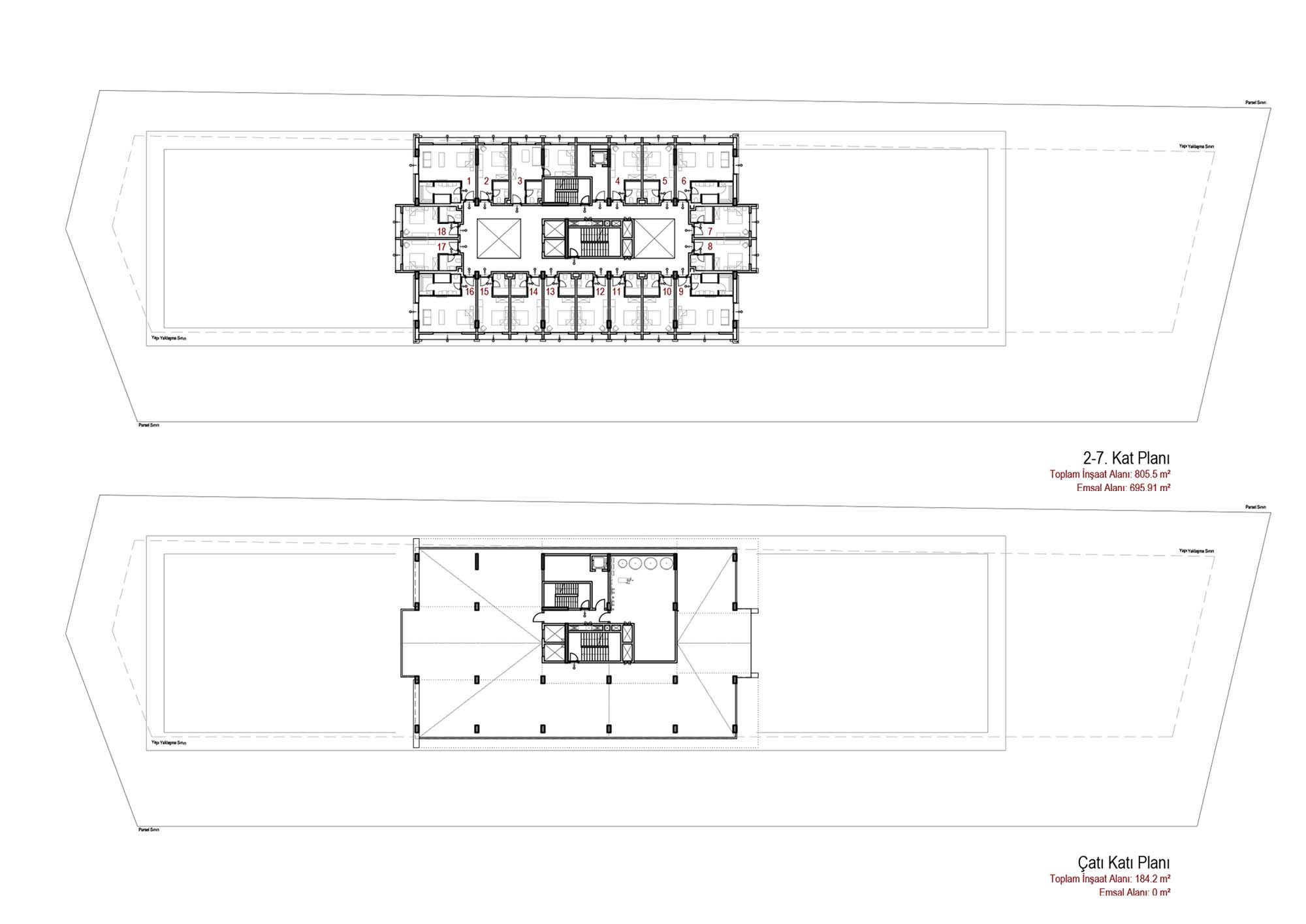
Tire Otel
Proje Yeri: Tire, İzmir
Proje Ofisi: Not Mimarlık
Proje Tipi: Otel / Motel
Proje Tipi Grubu: Konaklama
Tasarım Ekibi: Serdar Uslubaş, Merih Feza Yıldırım, Duygu Görgün Şenoğlu, Talat Çelebi, Gülbiye Hacıoğlu, Ceren Tuncer, Sena Neşem Uysal
İşveren: Teos Balıkçılık Su Ürünleri Hayvancılık
Mekanik Projesi: Tolga Pala
Elektrik Projesi: Onmuş Elektrik
Proje Başlangıç Yılı: 2016
Toplam İnşaat Alanı: 10,240 m2