26/27
Paylaş
Resmi Orjinal Boyutunda Göster
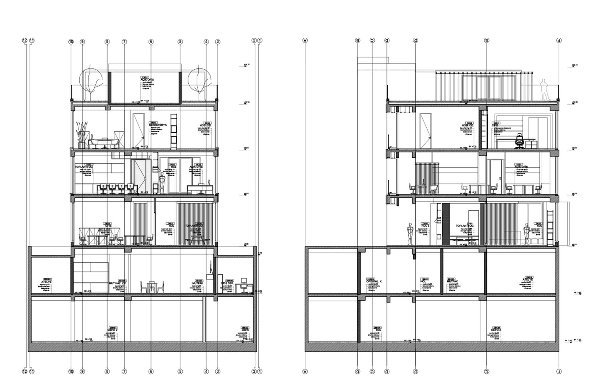
Eksen Mühendislik Genel Merkezi
Proje Yeri: Ümraniye, İstanbul
Proje Ofisi: studio be²
Proje Tipi: Ofis
Proje Tipi Grubu: Ticari
Tasarım Ekibi: Elçin Alpar Evsen, Buğra Evsen
İşveren: Eksen Mühendislik, Şevki Atalay
Ana Yüklenici: i&Kgroup Enerji ve İnşaat, Kayhan Demir
Fotoğraf: Mine Alpar
Proje Başlangıç Yılı: 2016
Proje Bitiş Yılı: 2016
İnşaat Başlangıç Yılı: 2016
İnşaat Bitiş Yılı: 2017
Arsa Alanı: 450 m2
Toplam İnşaat Alanı: 1,311 m²