10/11
Paylaş
Resmi Orjinal Boyutunda Göster
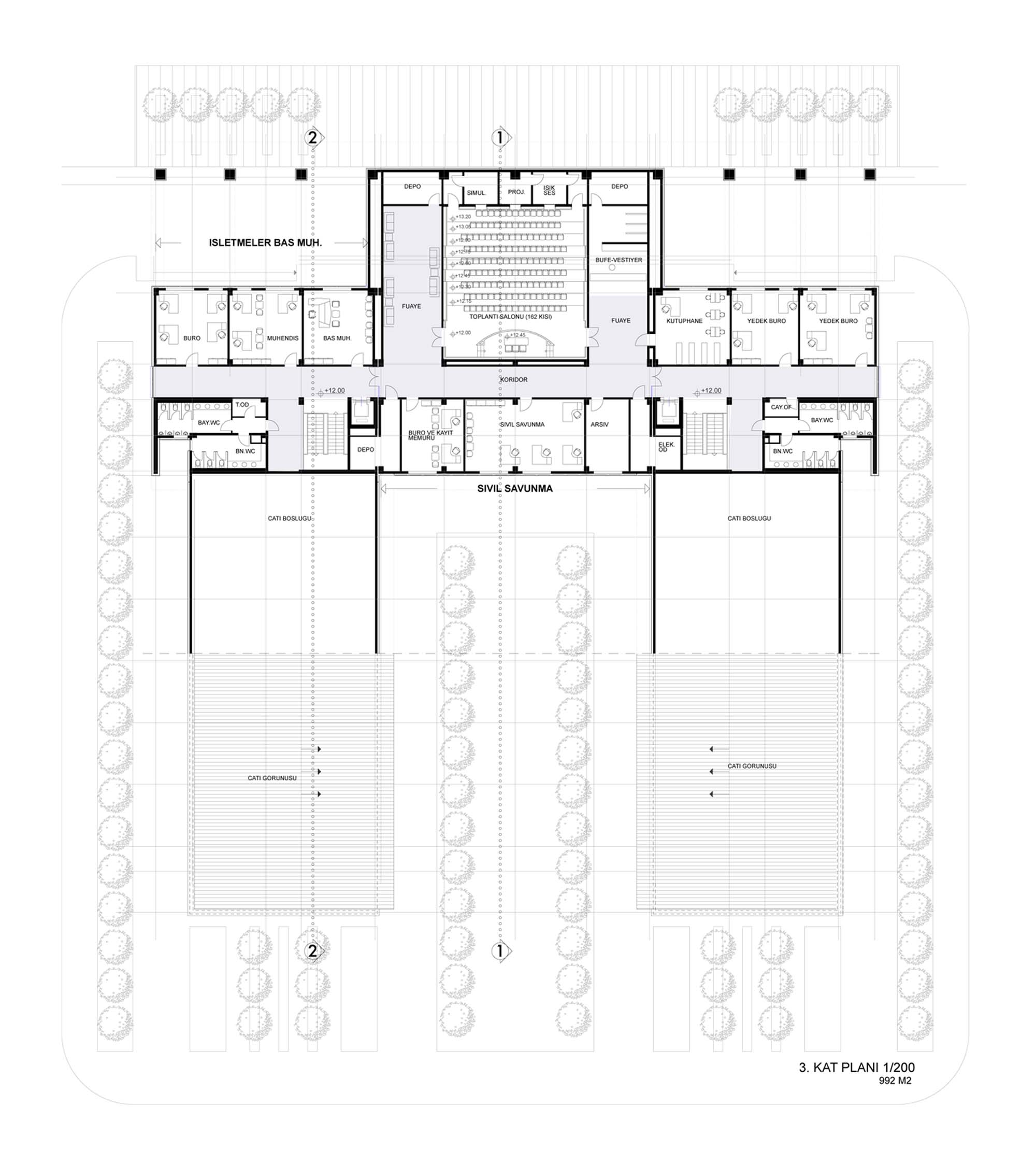
Karayolları 18. Bölge Müdürlüğü Kars Merkez Tesisleri
Proje Yeri: Kars
Proje Ofisi: İTEZ Mimarlık
Proje Tipi: Kamu Yönetim Binası, Diğer Kamu Yapıları
Tasarım Ekibi: Neşe İtez, Aytek İtez
İşveren: Karayolları Genel Müdürlüğü
Yardımcı: Hümeyra Uçan, İbrahim Kaçar, Mine Güney, Esin Sarıca Özesen, Özüm İtez
Peyzaj Mimarlığı: Sevinç Gündoğdu
Statik Projesi: Tekno Dizayn Mühendislik
Mekanik Projesi: Yazman Mühendislik
Elektrik Projesi: As Mühendislik
Proje Başlangıç Yılı: 2011
Proje Bitiş Yılı: 2012
İnşaat Başlangıç Yılı: 2013
Arsa Alanı: 168.457 m²
Toplam İnşaat Alanı: 48.512 m²