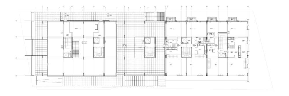
Zemin Kat Plani
15/22
Paylaş
Resmi Orjinal Boyutunda Göster
Su.Venue Residence
Fotoğraflar: Uğur Ceylan
Proje Yeri: Göktürk, İstanbul
Proje Ofisi: House 212
Proje Tipi: Apartman
Proje Tipi Grubu: Konut
Tasarım Ekibi: Nihal Arlat
İşveren: Dizayn Yapı Uygulama Limited
Yardımcı: Eda Yunusoğlu
Ana Yüklenici: Dizayn Yapı Uygulama Limited
Statik Projesi: Kekeçoğlu Mühendislik
Mekanik Projesi: Mapet
Proje Başlangıç Yılı: 2007
Proje Bitiş Yılı: 2008
İnşaat Başlangıç Yılı: 2008
İnşaat Bitiş Yılı: 2011
Arsa Alanı: 1.700 m2
Toplam İnşaat Alanı: 11.500 m2