p 05 02
12/30
Paylaş
Resmi Orjinal Boyutunda Göster
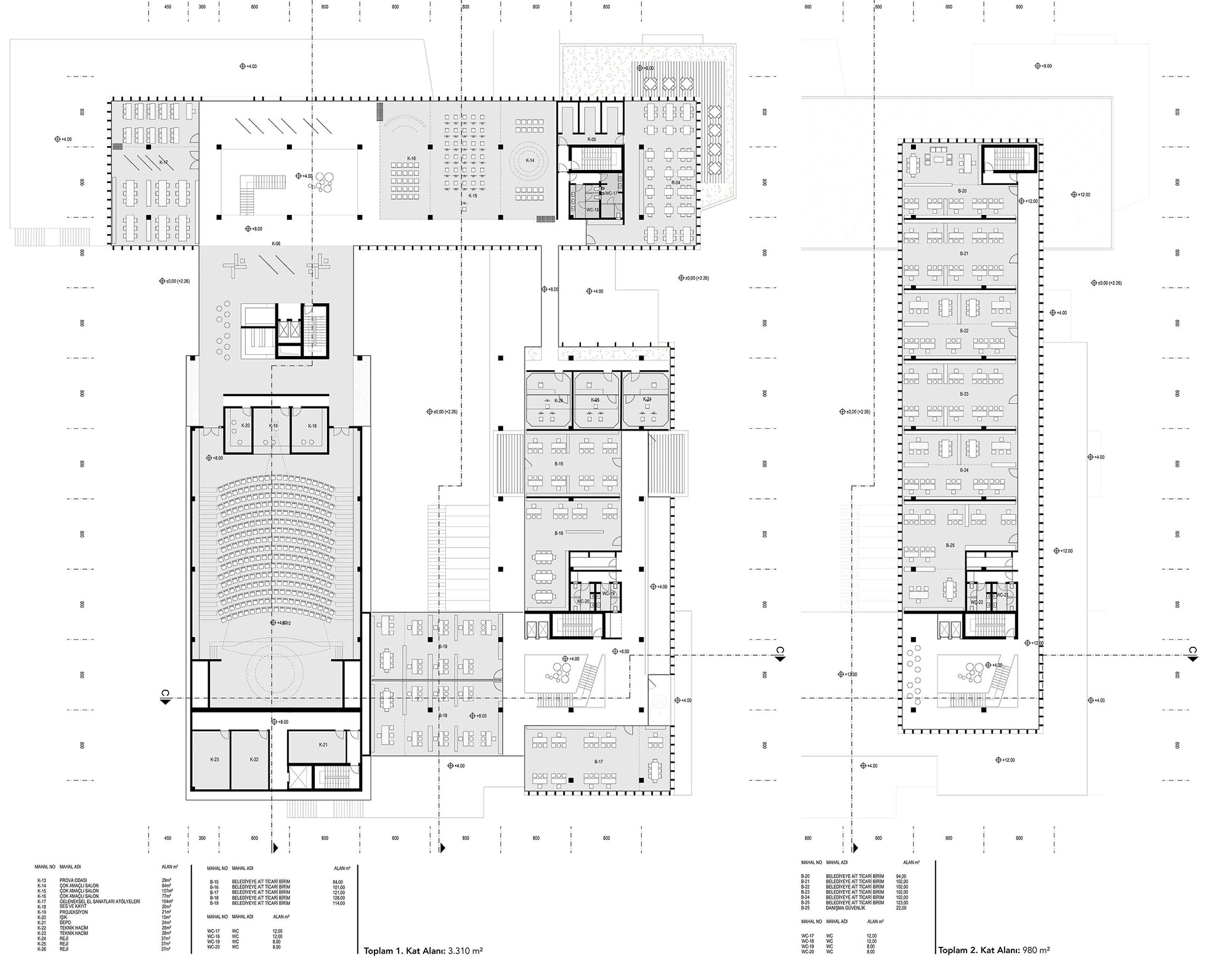
Katılımcı (addoffice), Çanakkale Belediyesi Çarşı, Yaşam Merkezi ve Otopark ile Yakın Çevresi Mimari Proje Yarışması
Proje Yeri: Çanakkale
Proje Ofisi: addoffice
Proje Tipi: Sosyal Tesis, Kültür Merkezi
Proje Tipi Grubu: Katılımcı
Tasarım Ekibi: Ece Doğan, Çağlar Barış, İbrahim Tolga Han
Danışman: Arda İnceoğlu
Yardımcı: Yasser Bunni, Mustafa Özdemir, Edanur Köşeli