12/28
Paylaş
Resmi Orjinal Boyutunda Göster
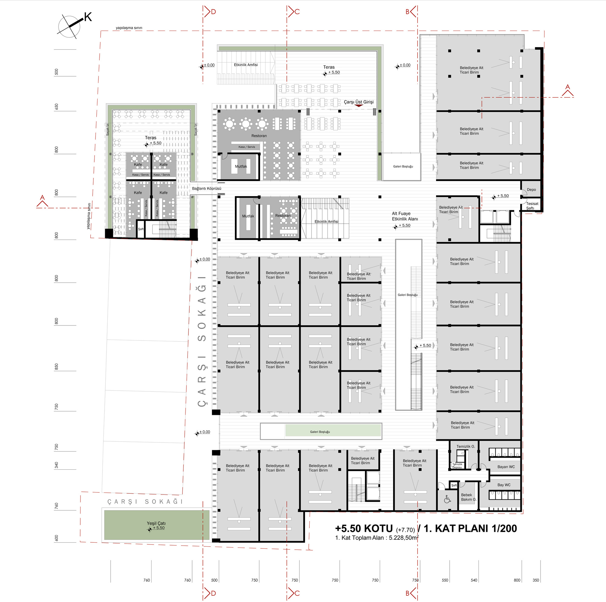
2. Ödül (CM2 Mimarlık ve Tasarım Stüdyosu), Çanakkale Belediyesi Çarşı, Yaşam Merkezi ve Otopark ile Yakın Çevresi Ulusal Mimari Proje Yarışması
Proje Yeri: Çanakkale
Proje Ofisi: CM2 Mimarlık ve Tasarım Stüdyosu
Proje Tipi: Sosyal Tesis, Kültür Merkezi
Proje Tipi Grubu: 2. Ödül
Tasarım Ekibi: Mustafa Mumcu, Cansu Arcan Mumcu