22/40
Paylaş
Resmi Orjinal Boyutunda Göster
Katılımcı, Çanakkale Belediyesi Çarşı, Yaşam Merkezi ve Otopark ile Yakın Çevresi Mimari Proje Yarışması
Project Location: Çanakkale
Project Office: MimLab
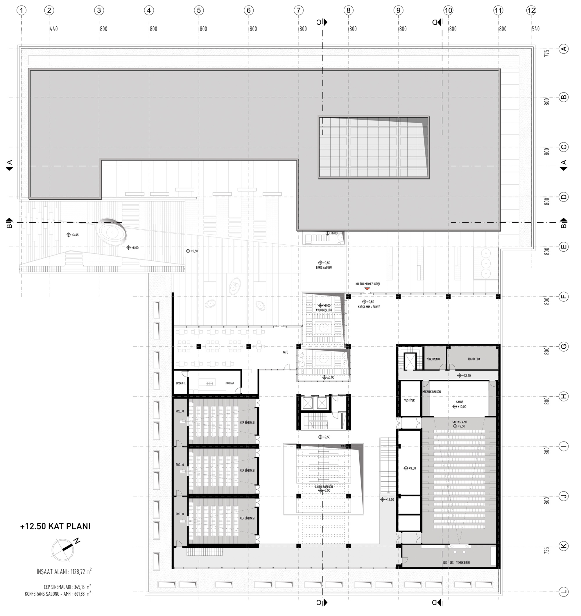
Project Type: Social Facility, Cultural Center
Proje Tipi Grubu: Katılımcı
Tasarım Ekibi: Elif Sarpaşar, Cansu Güreser, Sabriye Derya Yüce, Sadık Mert Kocaman, Özgün Albayrak
Consultant: Deniz Aslan
Yardımcı: Aybüke Aynur