43/50
Paylaş
Resmi Orjinal Boyutunda Göster
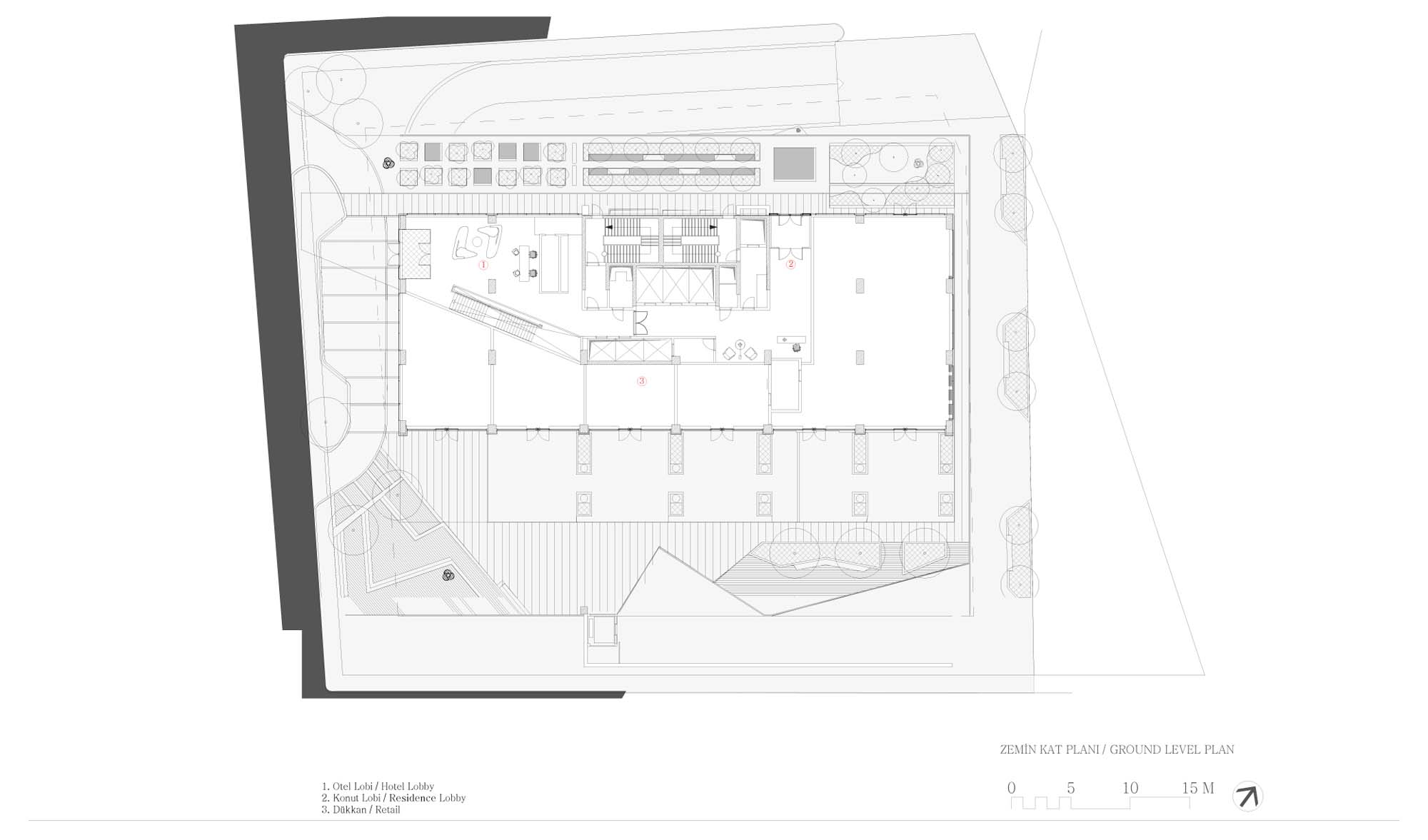
The House Residence Bomonti
Proje Yeri: İstanbul, Şişli
Proje Ofisi: Piramit Mimarlık
Proje Tipi: Apartman, Otel / Motel
Proje Tipi Grubu: Konut, Konaklama
Tasarım Ekibi: Mehmet Toydemir
İşveren: Yenigün İnşaat
Peyzaj Mimarlığı: Optimum Elektrik, Hyland Edgar Driver, Spiga Peyzaj Proje Danışmanlık
İç Mekan Projesi: Conran and Partners
Statik Projesi: Balkar Mühendislik
Mekanik Projesi: Vermeks Mühendislik
Akustik Projesi: MEA-akustik
Yangın Tahliye Projesi: YAN-MA-DAN Ltd
Fotoğraf: Yercekim Mimari Fotograf
Proje Başlangıç Yılı: 2012
Proje Bitiş Yılı: 2015
İnşaat Başlangıç Yılı: 2015
İnşaat Bitiş Yılı: 2017
Toplam İnşaat Alanı: 32,000 m2