Detay
9/10
Paylaş
Resmi Orjinal Boyutunda Göster
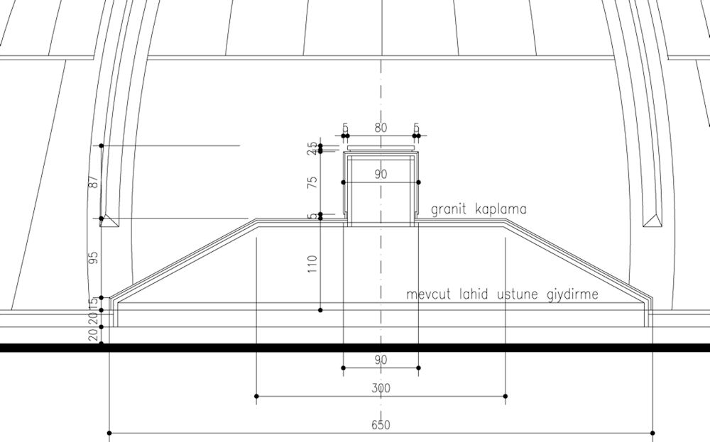
Turgut Özal Anıtmezarı
Proje Yeri: İstanbul, Fatih
Proje Ofisi: Sanlı Mimarlık
Proje Tipi: Anıt / Simge Yapı
Proje Tipi Grubu: Kentsel Tasarım
Tasarım Ekibi: Yılmaz Sanlı, Suzan Sanlı Esin
İşveren: İdil İnşaat
Yardımcı: Tuğba Üzümkesici
Proje Başlangıç Yılı: 1998
Proje Bitiş Yılı: 1998
İnşaat Başlangıç Yılı: 1998
İnşaat Bitiş Yılı: 1998