24/25
Paylaş
Resmi Orjinal Boyutunda Göster
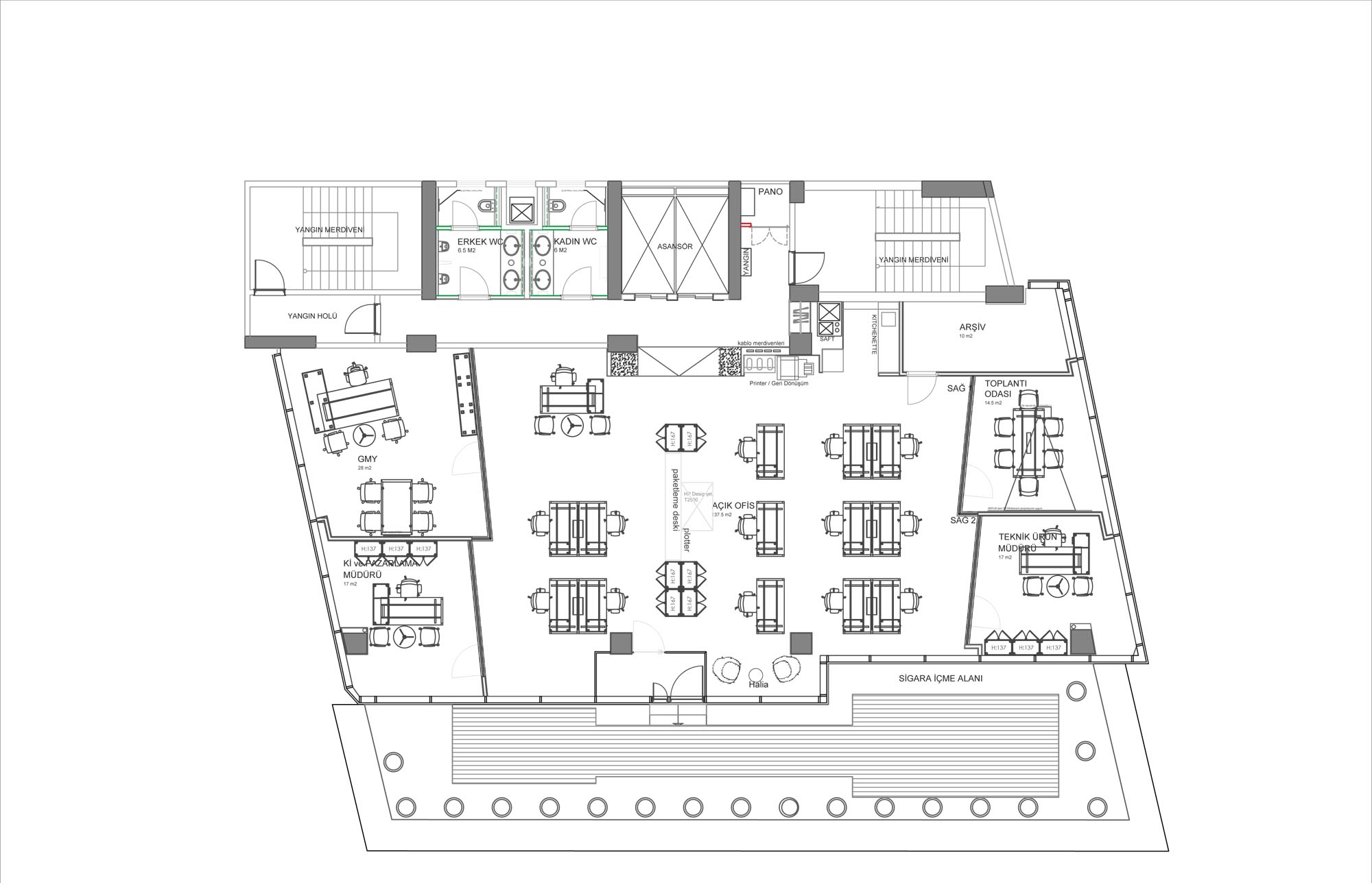
YTONG Türkiye Yönetim Merkezi
Project Location: Maltepe, İstanbul
Project Office: A4 Mimarlık
Project Type: Offices
Proje Tipi Grubu: Commercial
Tasarım Ekibi: Adil Kırkaya, Argun Alıcı, Erdem Argun, Özlem Ünal Atay, Nihat Çakır, Özen Özgün Özer, Döndü Kara, Fatih Ayyıldız
Mechanical Project: İKG Mekanik
Electrical Project: Asos Elektrik Mühendislik
Photography: Polat Gülkaş
Project Start Date: 2018
Project End Date: 2018
Construction Start Date: 2018
Construction End Date: 2018
Total Construction Area: 4,100 m2