30/62
Paylaş
Resmi Orjinal Boyutunda Göster
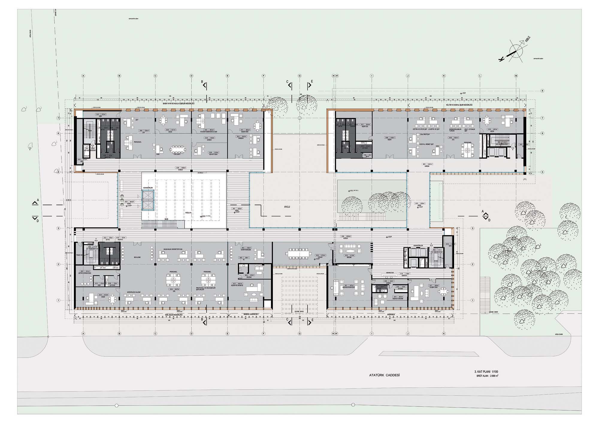
Şile Belediyesi Hizmet Binası, Kaymakamlık Camii ve Çevresi
Proje Yeri: Şile, İstanbul
Proje Ofisi: Mimarca Tasarım ve Mimarlık
Proje Tipi: Cami / Mescit, Belediye Hizmet Binası, Diğer Kamu Yapıları
Proje Tipi Grubu: Kamu
Tasarım Ekibi: Jülide Kazas
İşveren: Bimtaş Boğaziçi
Yardımcı: Canan Oduncu, Hatice Tozar Kılıç, Hülya Erdoğan, Youssef Shahrour
Proje Başlangıç Yılı: 2017
Proje Bitiş Yılı: 2018
Arsa Alanı: 22,798 m2
Toplam İnşaat Alanı: 32,550 m2