23/27
Paylaş
Resmi Orjinal Boyutunda Göster
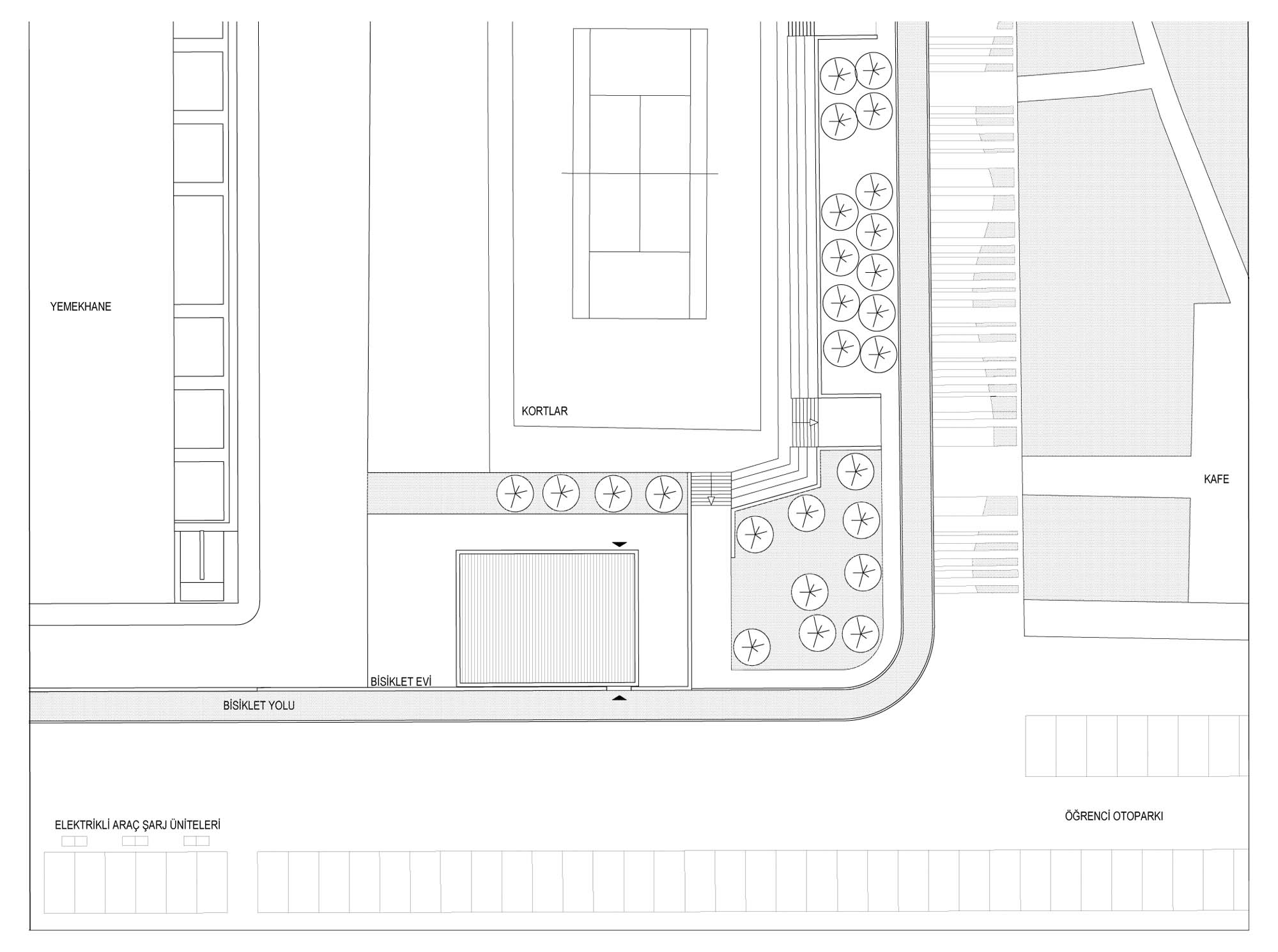
İTÜ Bisiklet Evi
Project Location: İstanbul, Sarıyer
Project Office: Ulaş Mimarlık
Project Type: Other Transportation Buildings
Proje Tipi Grubu: Ulaşım
Tasarım Ekibi: Ulaş Kelle, Şafak Delice, Dilara Kelle
Employer: İstanbul Teknik Üniversitesi (İTÜ) Rektörlüğü
Yardımcı: Zeynep Karaer, Şima Coşkun
Ana Yüklenici: Seçkin İnşaat
Structural Project: Susur Mühendislik
Mechanical Project: Ferah Mühendislik
Electrical Project: Ta Proje
Photography: Alp Eren
Project Start Date: 2015
Project End Date: 2015
Construction Start Date: 2015
Construction End Date: 2016
Building Plot Area: 200 m2
Total Construction Area: 340 m²