Pafta
7/13
Paylaş
Resmi Orjinal Boyutunda Göster
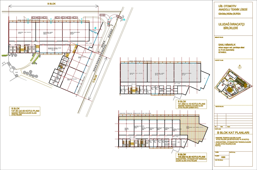
UIB Otomotiv Anadolu Teknik Lisesi Mimari Avan Proje Yarışması
Proje Yeri: Görükle, Bursa
Proje Tipi Grubu: Katılımcı
Tasarım Ekibi: Suzan Sanlı Esin
İşveren: Uludağ Otomotiv Endüstrisi İhracatçıları Birliği (UİB), Uludağ İhracatçılar Birliği
Proje Başlangıç Yılı: 2009
Arsa Alanı: 21760 m²