14/28
Paylaş
Resmi Orjinal Boyutunda Göster
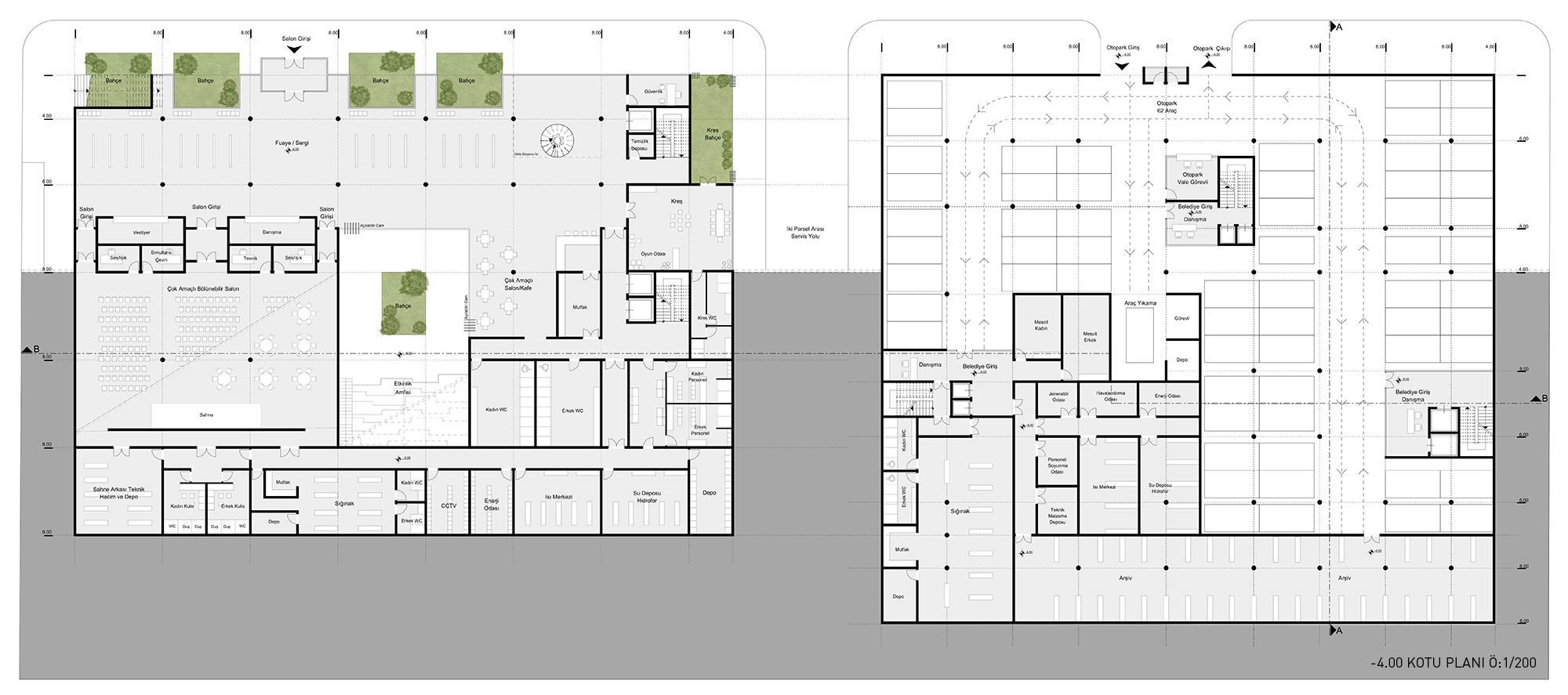
Katılımcı (MEES Mimarlık), Kamu Binaları Tasarımı Fikir Yarışması Ürgüp Belediyesi Hizmet Binası
Proje Yeri: Nevşehir, Ürgüp
Proje Ofisi: MEES Mimarlık
Proje Tipi: Belediye Hizmet Binası
Proje Tipi Grubu: Katılımcı
Tasarım Ekibi: Esra Yılmaz Keskin, Mete Keskin
Yardımcı: Nejat Çankaya, Seda Çetiner, Şehmus Arık, Buse Ayvaz