6/23
Paylaş
Resmi Orjinal Boyutunda Göster
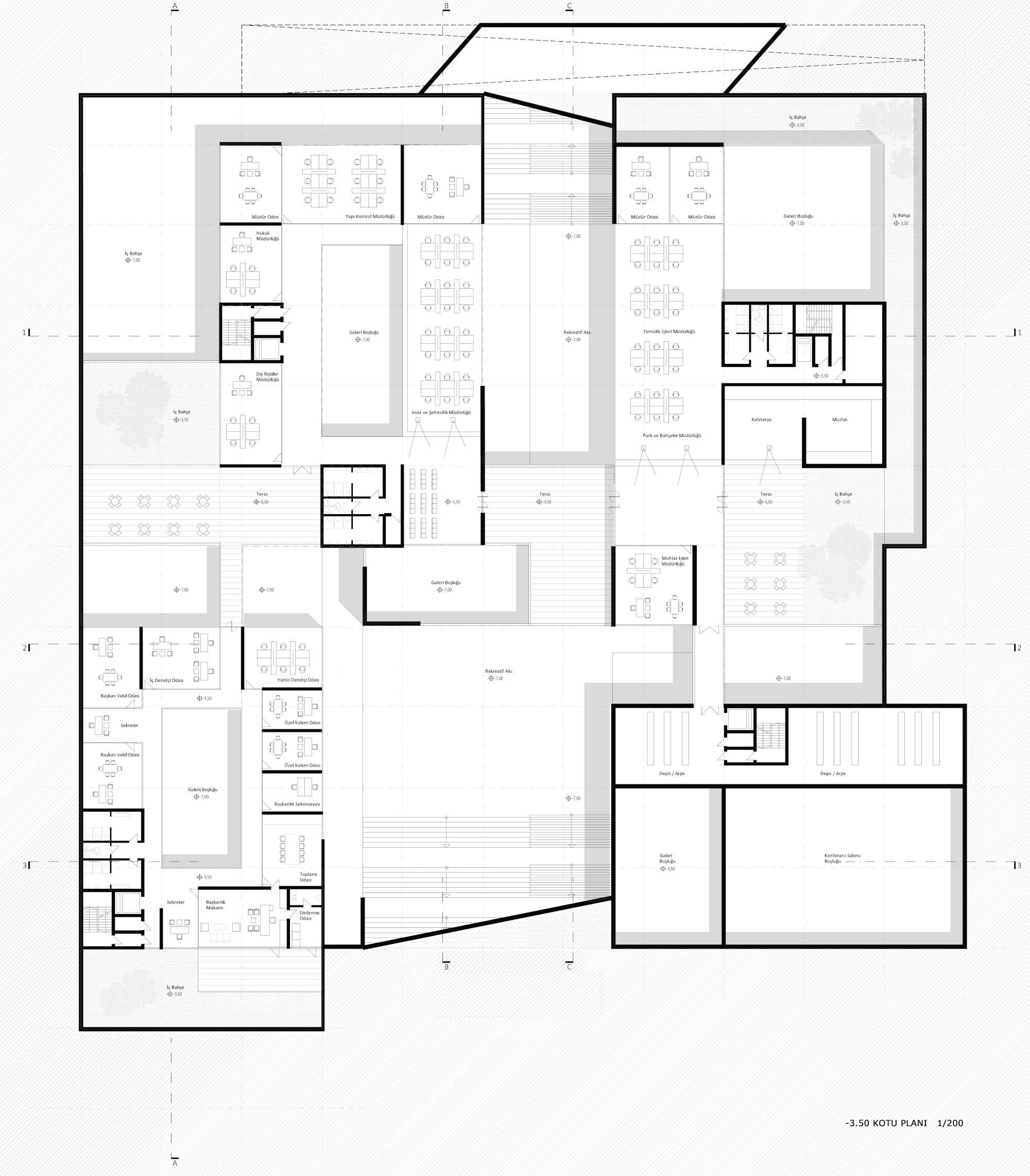
2. Ödül (BUDA Mimarlık), Kamu Binaları Tasarımı Fikir Yarışması
Proje Yeri: Milas
Proje Ofisi: Buda Mimarlık
Proje Tipi: Belediye Hizmet Binası, Kültür Merkezi
Proje Tipi Grubu: 2. Ödül
Tasarım Ekibi: Burak Pelenk
Yardımcı: Eda Yazkurt Pelenk, Damla İçyer, Meltem Çınar, Hudayberdi Meretgeldiyev, Müjgan Kıymet Yeprem, Ahmet Faruk Bayrak