22/22
Paylaş
Resmi Orjinal Boyutunda Göster
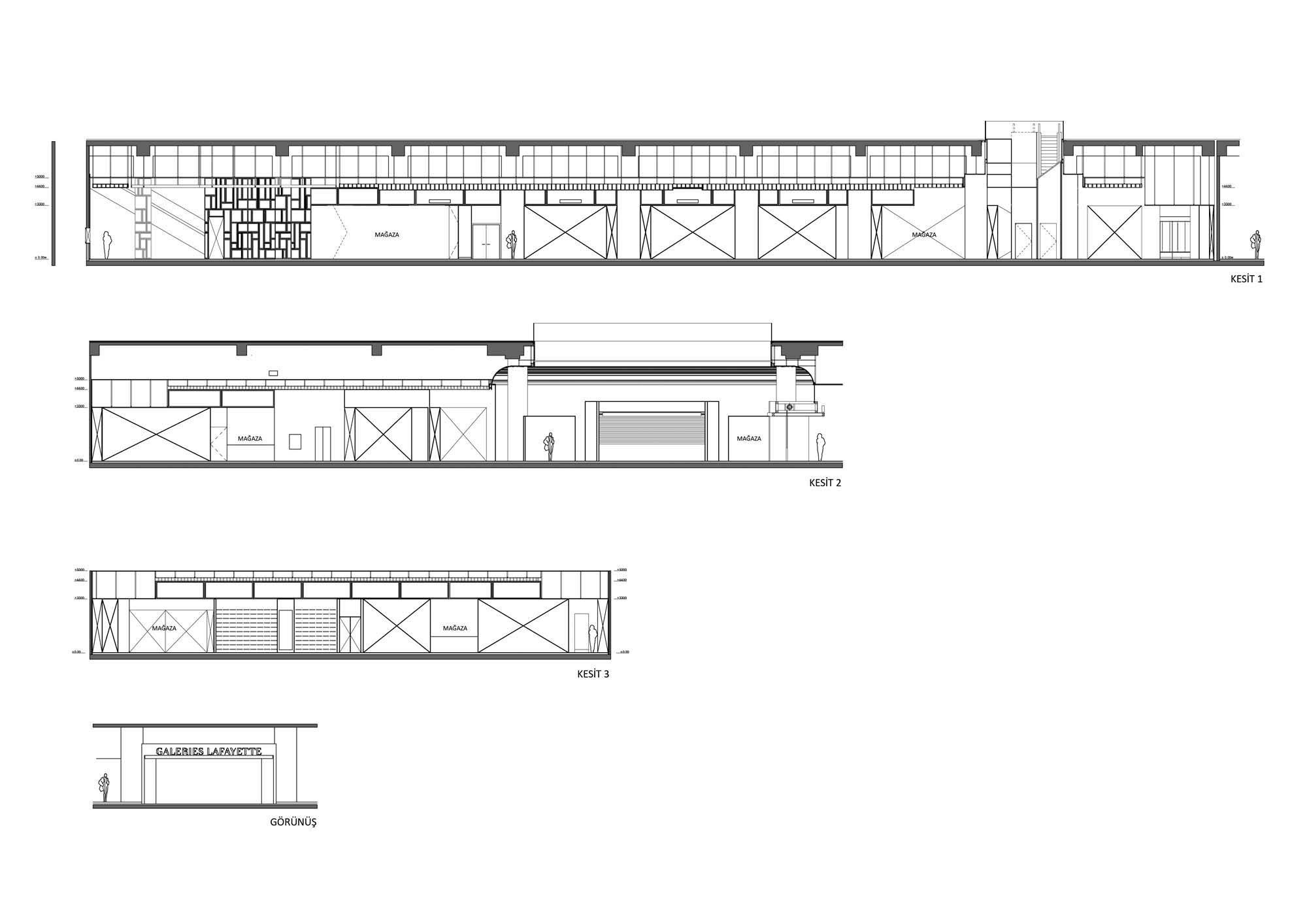
Galeries Lafayatte
Proje Yeri: Üsküdar, İstanbul
Proje Ofisi: Yoo Mimarlık, Plajer & Franz Studio
Proje Tipi: Mağaza / Showroom
Proje Tipi Grubu: Ticari
İşveren: DEMSA
Ana Yüklenici: Yoo Mimarlık
Mekanik Projesi: Erel Mühendislik
Elektrik Projesi: Erel Mühendislik
Tesisat Projesi: Erel Mühendislik
Fotoğraf: Ömer Uzun
Proje Başlangıç Yılı: 2016
Proje Bitiş Yılı: 2016
İnşaat Başlangıç Yılı: 2017
İnşaat Bitiş Yılı: 2017
Toplam İnşaat Alanı: 9,000 m²