20/30
Paylaş
Resmi Orjinal Boyutunda Göster
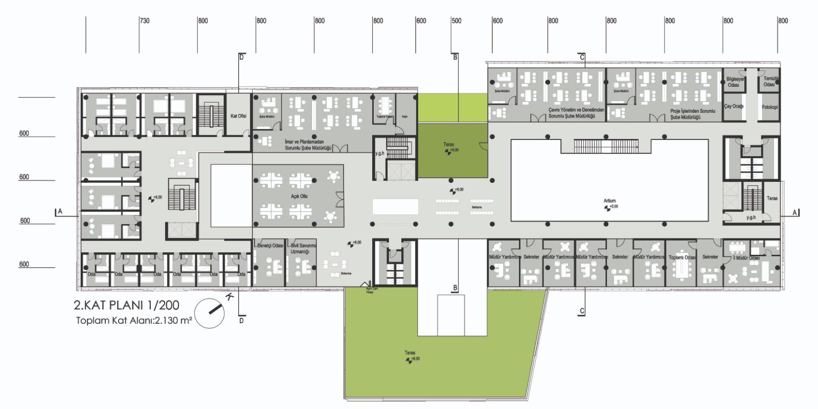
Katılımcı, Kamu Binaları Tasarımı Fikir Yarışması
Project Location: Konya
Project Type: Public Administration Building
Proje Tipi Grubu: Katılımcı
Tasarım Ekibi: Ömer Özeren, Edibe Begüm Özeren