8/15
Paylaş
Resmi Orjinal Boyutunda Göster
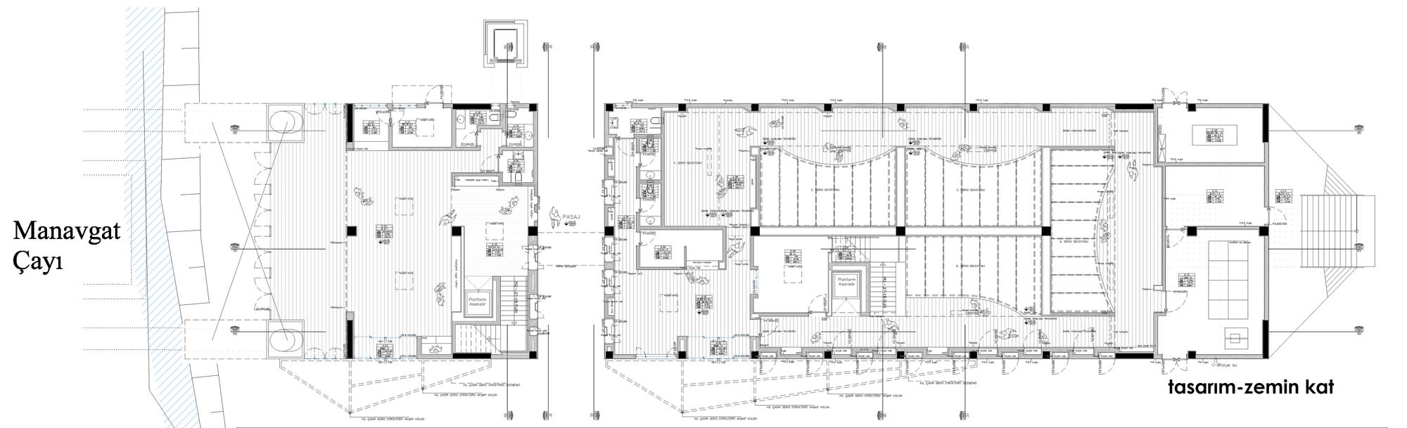
Manavgat Kent Müzesi
Project Location: Manavgat, Antalya
Project Office: 8Artı Mimarlık ve Kentsel Tasarım
Project Type: Museum
Proje Tipi Grubu: Kültür
Tasarım Ekibi: Devrim Çimen
Employer: Manavgat Belediyesi
Yardımcı: Poyraz Özer, Brenda Kandiyotti
Project Start Date: 2017
Construction End Date: 2017
Building Plot Area: 3,000 m²
Total Construction Area: 1,200 m2