11/14
Paylaş
Resmi Orjinal Boyutunda Göster
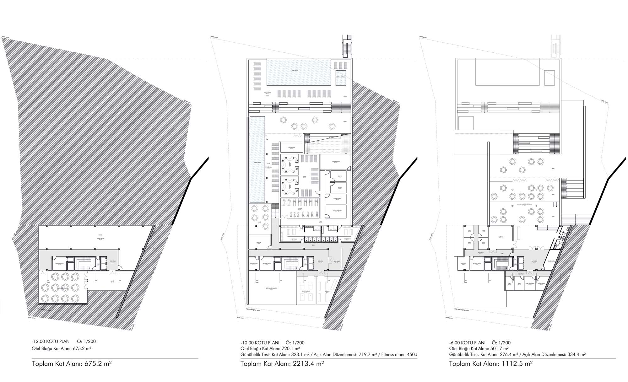
Zonguldak İl Özel İdaresi Türkali Konaklama ve Günübirlik Tesisi
Proje Yeri: Zonguldak, Kilimli
Proje Ofisi: SCRA Mimarlık
Proje Tipi: Otel / Motel
Proje Tipi Grubu: Konaklama
Tasarım Ekibi: Seden Cinasal Avcı, Ramazan Avcı, Merve Şen, Merve Özduman, Dilşad Uzar, Gizem Pekdemir, Aysema Ülke
İşveren: Zonguldak Valiliği
Proje Başlangıç Yılı: 2018
Toplam İnşaat Alanı: 6,820 m2