23/32
Paylaş
Resmi Orjinal Boyutunda Göster
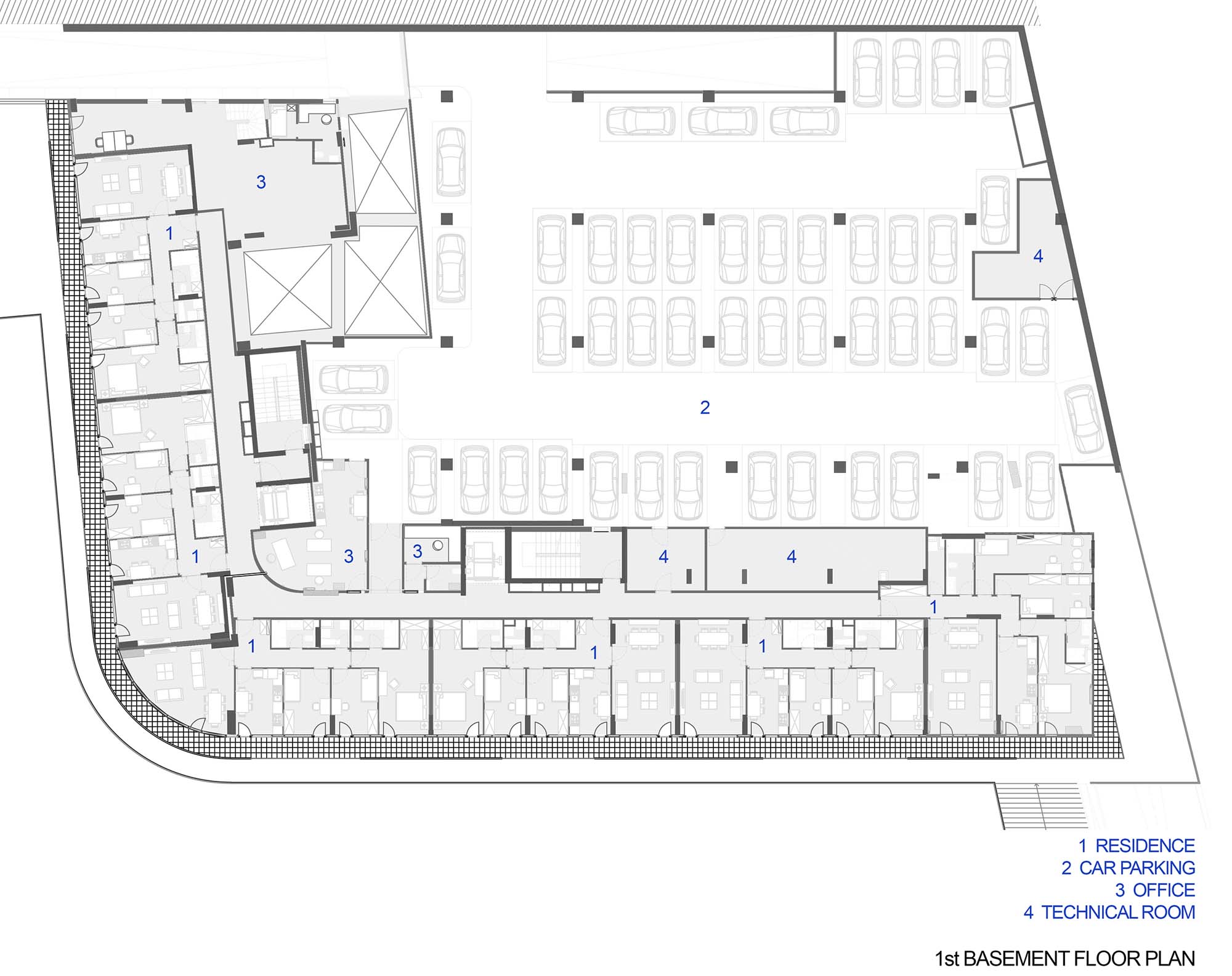
Alyapark Apartmanı
Proje Yeri: Pendik, İstanbul
Proje Ofisi: VIA Mimarlık
Proje Tipi: Apartman
Proje Tipi Grubu: Konut
Tasarım Ekibi: Vehbi İnan, Bahar Beyhan İnan, Hazal Özkan, Müge Ersöz Tuştaş, Rania Hosni, Kutay Çakmak
İşveren: Barış İnşaat
Ana Yüklenici: Barış İnşaat
Statik Projesi: Asko Yapı
Mekanik Projesi: MEC Proje
Elektrik Projesi: TGM Elektrik
Fotoğraf: Büşra Yeltekin
Proje Başlangıç Yılı: 2015
Proje Bitiş Yılı: 2017
İnşaat Başlangıç Yılı: 2016
İnşaat Bitiş Yılı: 2018
Arsa Alanı: 3,990 m²
Toplam İnşaat Alanı: 22,540 m²