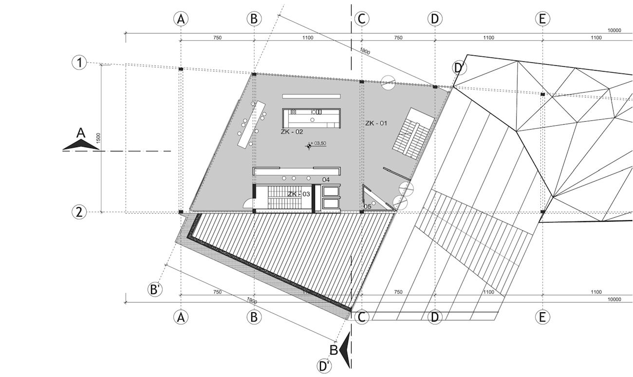
Plan
9/23
Paylaş
Resmi Orjinal Boyutunda Göster
Gelibolu Yarışması, 1. Mansiyon
Proje Yeri: Çanakkale
Proje Tipi: Kentsel Tasarım, Hastane / Poliklinik, Anıt / Simge Yapı
Proje Tipi Grubu: 1. Mansiyon
Tasarım Ekibi: Deniz Yazıcı, Onur Akın, Doğan Türkkan