7/10
Paylaş
Resmi Orjinal Boyutunda Göster
Başlığı girin
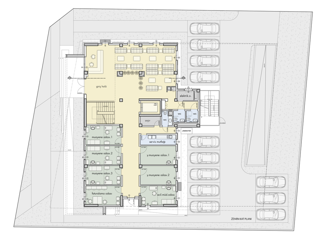
Proje Yeri: Düzce
Proje Ofisi: Ortak Mimarlar
Proje Tipi: Diğer Sağlık Yapıları
Proje Tipi Grubu: Sağlık
Tasarım Ekibi: Cuma Evren Yıldırım
İşveren: Fizema
Toplam İnşaat Alanı: 2,000 m²