13/19
Paylaş
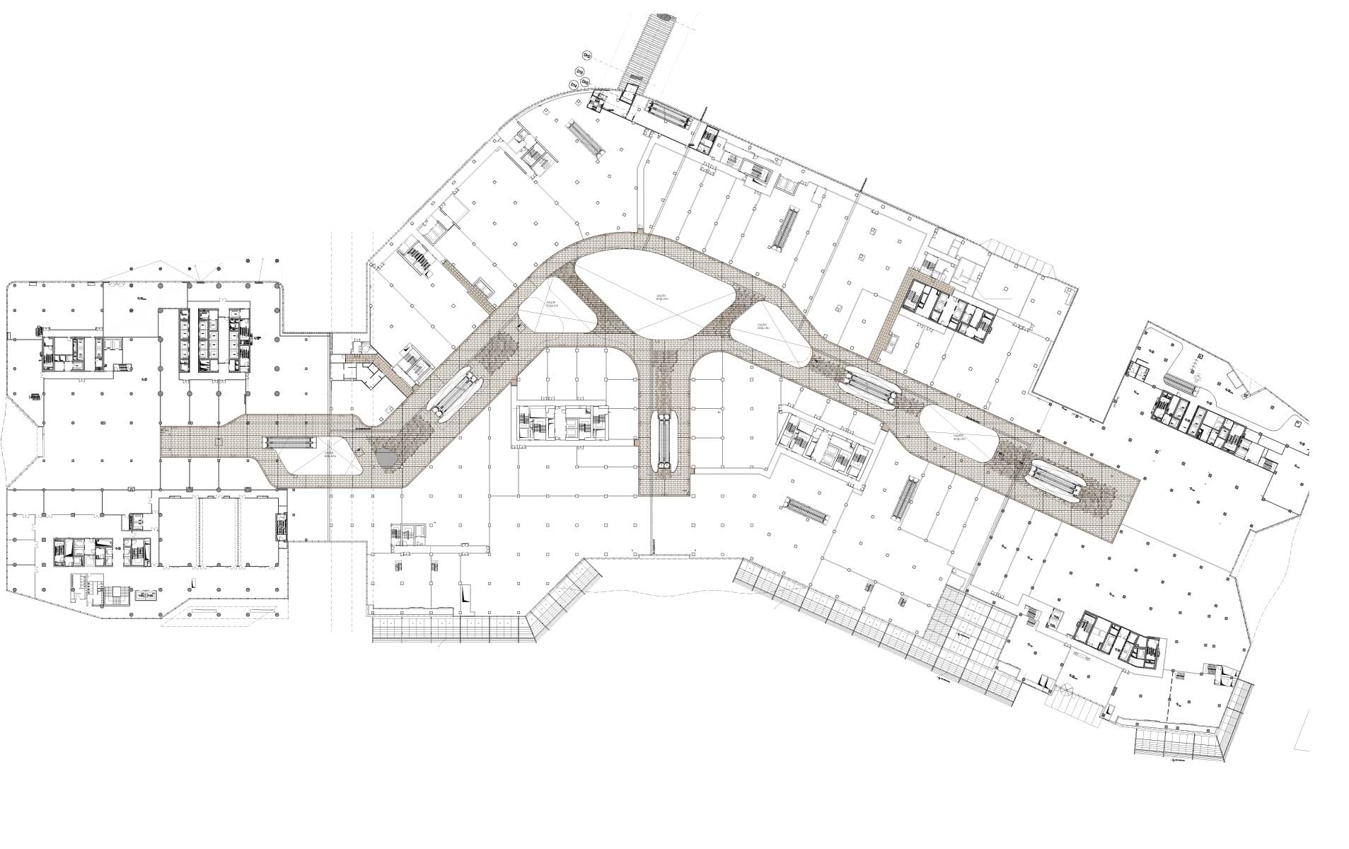
Resmi Orjinal Boyutunda Göster
Vadistanbul Alışveriş Merkezi
Proje Yeri: Sarıyer, İstanbul
Proje Ofisi: Benoy, 3XKO
Proje Tipi: Alışveriş Merkezi
Proje Tipi Grubu: Ticari
İşveren: Vadistanbul - Artaş & Invest Ortak Girişimi
Aydınlatma Projesi: Har Hollands
Fotoğraf: 3XKO
Proje Başlangıç Yılı: 2015
Proje Bitiş Yılı: 2017
İnşaat Bitiş Yılı: 2017
Toplam İnşaat Alanı: 100.000 m²