77/82
Paylaş
Resmi Orjinal Boyutunda Göster
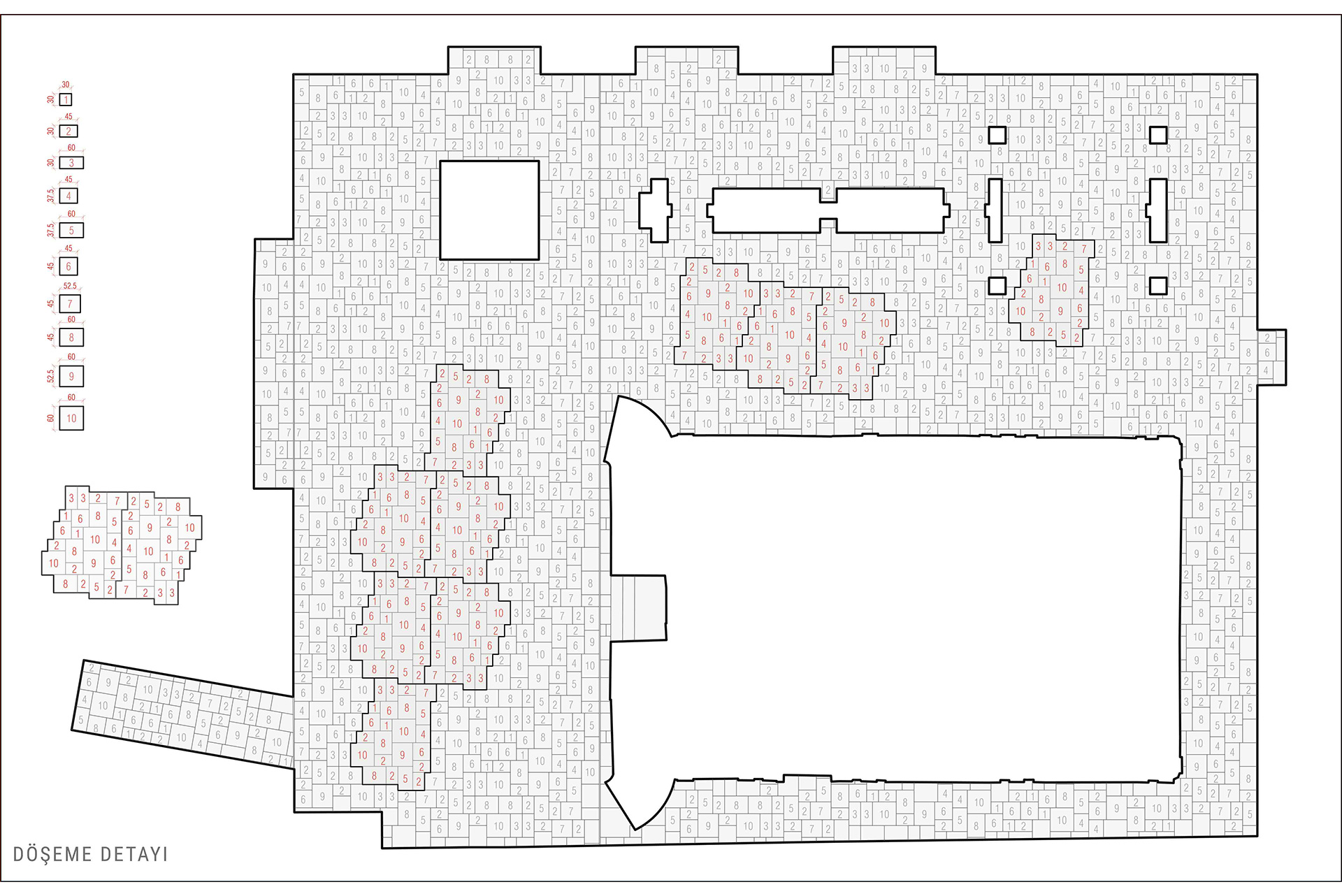
Kaptanpaşa Camii Şadırvanı
Proje Yeri: İstanbul, Eyüpsultan
Proje Ofisi: NUN I Architecture and Design
Proje Tipi: Diğer Dini Yapılar
Proje Tipi Grubu: Dini
Tasarım Ekibi: Celâleddin Çelik, Fatima Abi Kardan
İşveren: İstanbul Büyükşehir Belediyesi
Ana Yüklenici: Su Yüklenim AŞ
Fotoğraf: Burhan Üçkardeş
Proje Başlangıç Yılı: 2018
Proje Bitiş Yılı: 2018
İnşaat Başlangıç Yılı: 2018
İnşaat Bitiş Yılı: 2018
Toplam İnşaat Alanı: 670 m2