25/32
Paylaş
Resmi Orjinal Boyutunda Göster
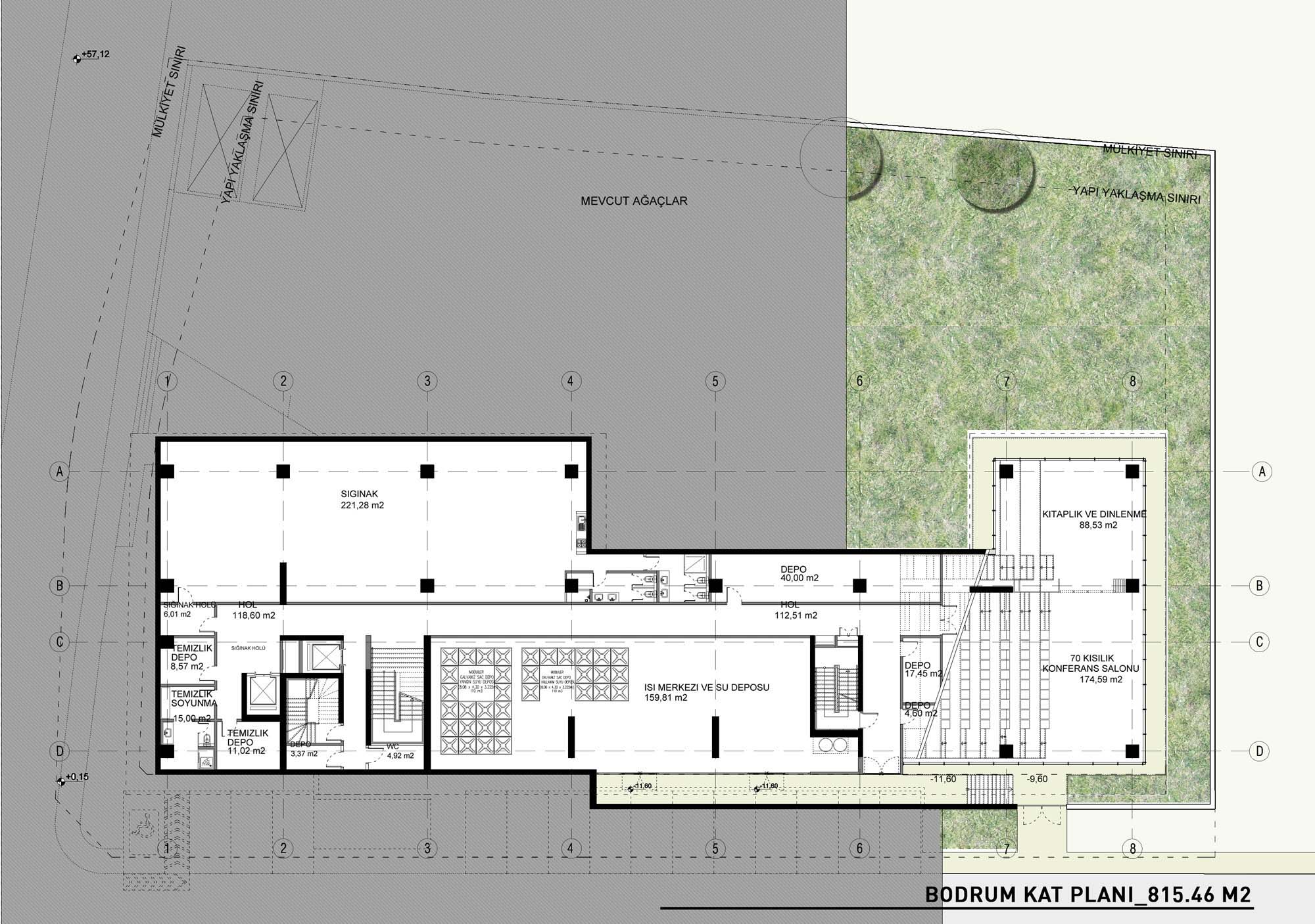
Bahçelievler Kocasinan Yurt Binası
Proje Yeri: Bahçelievler, İstanbul
Proje Ofisi: Özer/Ürger Mimarlık
Proje Tipi: Yurt / Konukevi
Proje Tipi Grubu: Konaklama
Tasarım Ekibi: Ali Özer, Ahmet Mucip Ürger, Seda Gecü
İşveren: İBB Üst Yapılar Daire Başkanlığı
Yardımcı: Gökçe Ejder, Ercan Koca, Mustafa Tekin
Ana Yüklenici: TÜMAŞ
Statik Projesi: AKY Mühendislik
Mekanik Projesi: MC Mühendislik
Elektrik Projesi: Esen Mühendislik
Yangın Tahliye Projesi: Karina
Fotoğraf: Yercekim Mimari Fotograf
Proje Başlangıç Yılı: 2015
Proje Bitiş Yılı: 2015
İnşaat Başlangıç Yılı: 2016
İnşaat Bitiş Yılı: 2018
Toplam İnşaat Alanı: 3,100 m2