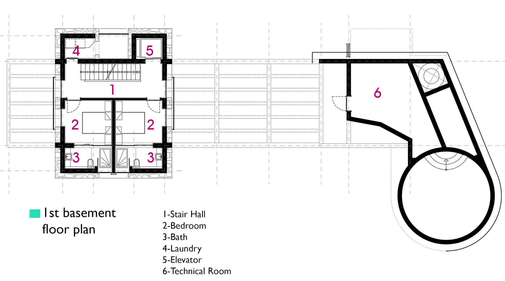
1. Bodrum Katı Planı
23/25
Paylaş
Resmi Orjinal Boyutunda Göster
Ersan Evi
Fotoğraflar: Ahmet Can Ersan
Project Location: Bodrum, Muğla
Project Office: ACE Mimarlık
Project Type: Single House
Proje Tipi Grubu: Konut
Tasarım Ekibi: Orçun Ersan, Ahmet Can Ersan
Employer: Ahmet Can Ersan
Yardımcı: Uğur Furtana, Nilgün Deniz, Kıvanç Cumik
Structural Project: Gürkan Erduman, Ali Rıza Uysal
Project Start Date: 2010
Project End Date: 2011
Construction Start Date: 2010
Construction End Date: 2011
Building Plot Area: 5.000 m²
Total Construction Area: 420 m2