6/6
Paylaş
Resmi Orjinal Boyutunda Göster
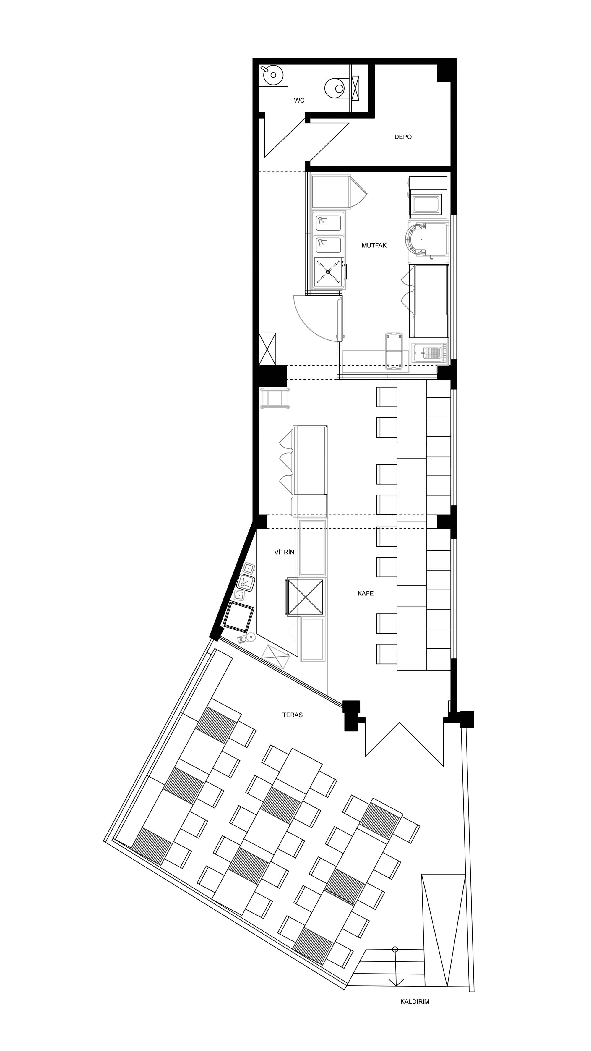
Pazar Gastrogaleri
Proje Yeri: Kadıköy, İstanbul
Proje Ofisi: VIA Mimarlık
Proje Tipi: Restoran / Kafe / Bar
Proje Tipi Grubu: Ticari
Tasarım Ekibi: Vehbi İnan, Bahar Beyhan İnan, Rania Hosni, Kutay Çakmak, Hazal Özkan
İşveren: Pazar Gastrogaleri
Ana Yüklenici: Güneşten Yapım Yönetim
Mekanik Projesi: WI Mühendislik
Elektrik Projesi: Must Mühendislik
Fotoğraf: Harun Erhan Abinikman
Proje Başlangıç Yılı: 2018
Proje Bitiş Yılı: 2018
İnşaat Başlangıç Yılı: 2018
İnşaat Bitiş Yılı: 2018
Toplam İnşaat Alanı: 92 m2