14/19
Paylaş
Resmi Orjinal Boyutunda Göster
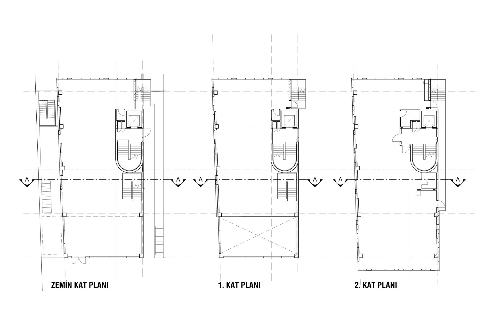
Cinnah 112
Proje Yeri: Ankara, Çankaya
Proje Ofisi: VEN Mimarlık
Proje Tipi: Ofis
Proje Tipi Grubu: Ticari
Tasarım Ekibi: Gül Güven, Fatih Erduman, Ceren Demircan, Recep Aygın, Gülistan Durmaz
İşveren: Elif Önay
Peyzaj Mimarlığı: Promim Çevre Düzenleme, Kentsel Tasarım
Statik Projesi: Özün Proje İnşaat Danışmanlık
Mekanik Projesi: Melis Mühendislik
Elektrik Projesi: Melis Mühendislik
İnşaat Bitiş Yılı: 2016
Toplam İnşaat Alanı: 2,500 m²